Одноэтажный дом с двумя спальнями 69м² (S85)

Артикул: S85
Артикул: S85
Одноэтажный дом с двумя спальнями 69м² (S85)
СТОИМОСТЬ УТОЧНЯЙТЕ ПО ТЕЛЕФОНУ 8(8452)77-80-80

Стоимость строительства дома по данному проекту указана справочно и зависит от комплектации, технических условий и актуальных цен на стройматериалы! Консультация по проекту по телефону (8452) 77-80-80.


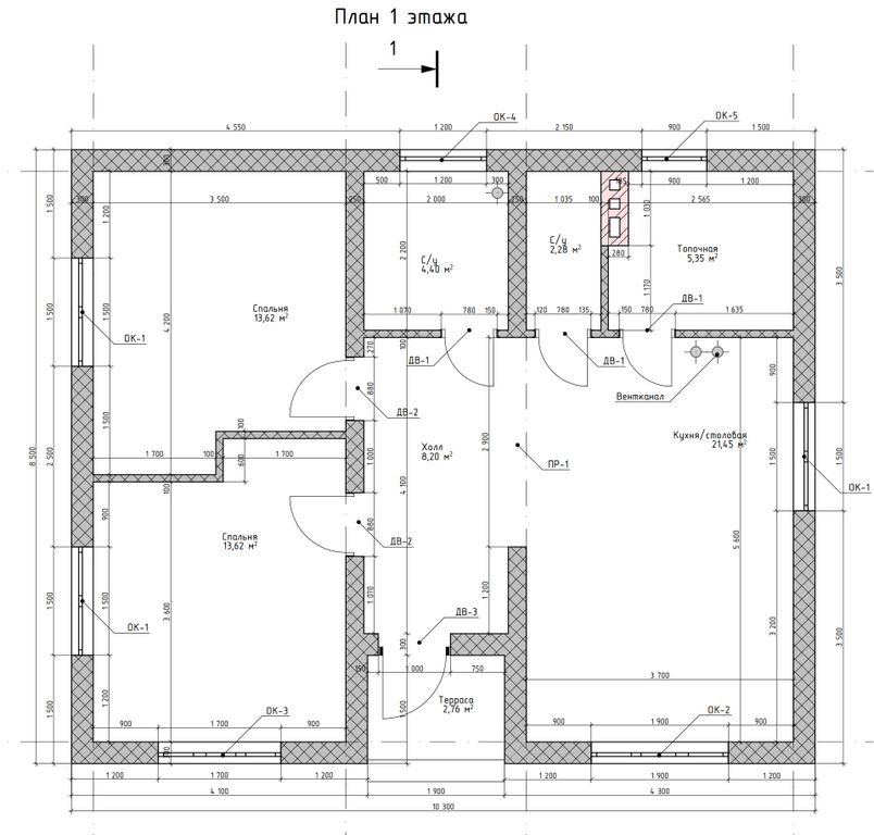
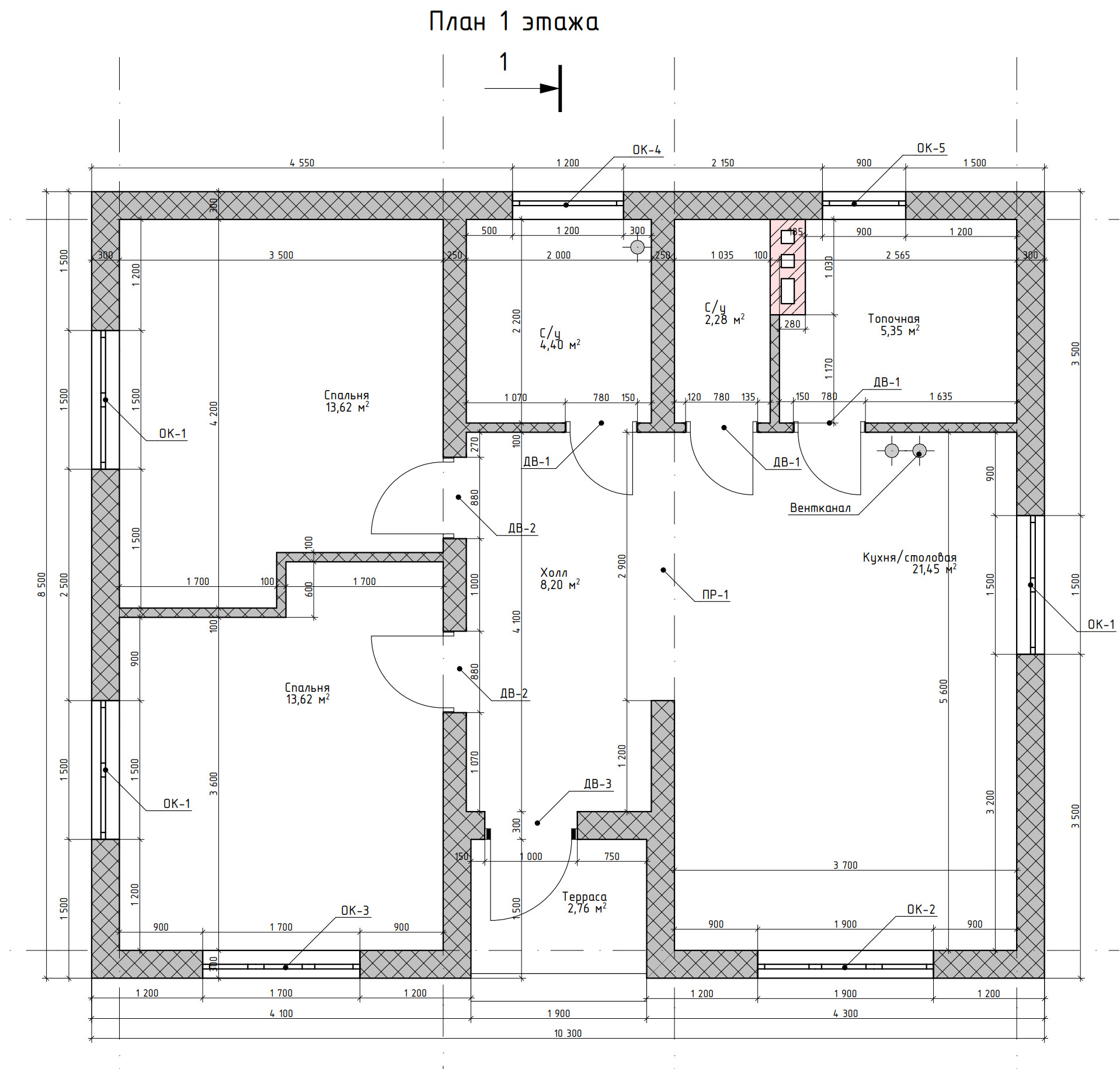
Готовый проект одноэтажного дома общей площадью 68,92 м². Стены дома могут быть выполнены из газосиликатных блоков или силикатного кирпича. По плану в доме холл (8,20 м²), топочная (5,35 м²), кухня-столовая (21,45 м²), 2 санузла (4,40 м², 2,28 м²), 2 спальни (13,62 м², 13,62 м²).


Общие технические характеристики дома
  • Внешняя площадь здания 87 м²
  • Общая площадь: 68,92 м²
  • Площадь крыльца: 2,76 м²
  • Высота 1-го этажа: 3 м
  • Угол наклона кровли: 3
  • Площадь крыши дома: 116,46 м²

Стоимость строительства дома по данному проекту указана справочно и зависит от комплектации, технических условий и актуальных цен на стройматериалы! Консультация по проекту по телефону (8452) 77-80-80.


Готовый проект одноэтажного дома общей площадью 68,92 м². Стены дома могут быть выполнены из газосиликатных блоков или силикатного кирпича. По плану в доме холл (8,20 м²), топочная (5,35 м²), кухня-столовая (21,45 м²), 2 санузла (4,40 м², 2,28 м²), 2 спальни (13,62 м², 13,62 м²).


Общие технические характеристики дома
  • Внешняя площадь здания 87 м²
  • Общая площадь: 68,92 м²
  • Площадь крыльца: 2,76 м²
  • Высота 1-го этажа: 3 м
  • Угол наклона кровли: 3
  • Площадь крыши дома: 116,46 м²

Похожие проекты домов

Одноэтажный дом с двумя спальнями 89м² (S19)
Одноэтажный дом с двумя спальнями 69м² (S23)
Одноэтажный дом с двумя спальнями 60м² (S38)
Одноэтажный дом с двумя спальнями 83м² (S46)
Одноэтажный дом с двумя спальнями 86м² (S48)
Одноэтажный дом с двумя спальнями 56м² (S56)
Одноэтажный дом с тремя спальнями 83м² (S61)
Одноэтажный дом с двумя спальнями 67м² (S66)
Сравнить
0