Одноэтажный дом с двумя спальнями 86м² (S48)

Артикул: S48
Артикул: S48
Одноэтажный дом с двумя спальнями 86м² (S48)
СТОИМОСТЬ УТОЧНЯЙТЕ ПО ТЕЛЕФОНУ 8(8452)77-80-80

Стоимость строительства дома по данному проекту указана справочно и зависит от комплектации, технических условий и актуальных цен на стройматериалы! Консультация по проекту по телефону (8452) 77-80-80.


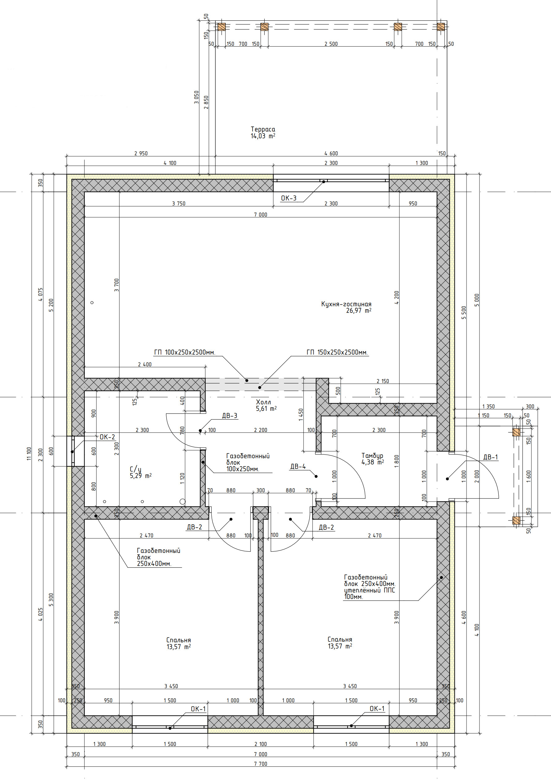
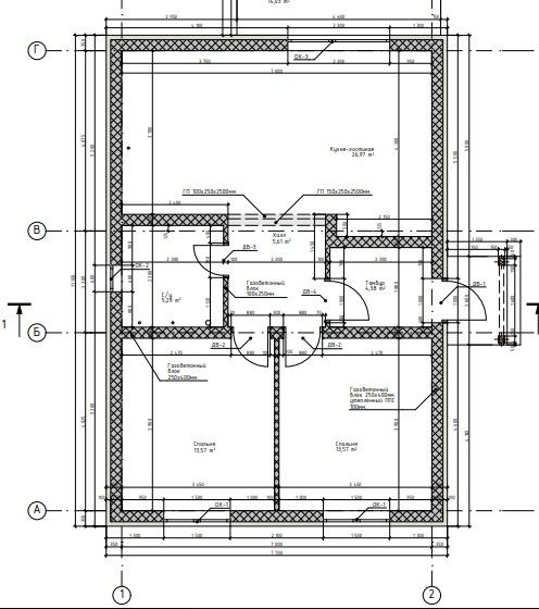
Готовый проект одноэтажного дома общей площадью 86 м². Стены дома могут быть выполнены из газосиликатных блоков или силикатного кирпича. По плану в доме две спальни (13,57 м², 13,57 м²), просторная кухня-гостиная (26,97 м²) и терраса (14,03 м²).


Общие технические характеристики дома
  • Внешняя площадь здания 99,5 м²
  • Жилая (общая) площадь: 86 м²
  • Площадь застройки: 99,5 м²
  • Высота 1-го этажа: 3 м
  • Угол наклона кровли: 30°
  • Площадь крыши дома: 119,62 м²
  • Площадь крыши террасы: 16,06 м²
  • Площадь крыши крыльца: 3,79 м²

Стоимость строительства дома по данному проекту указана справочно и зависит от комплектации, технических условий и актуальных цен на стройматериалы! Консультация по проекту по телефону (8452) 77-80-80.


Готовый проект одноэтажного дома общей площадью 86 м². Стены дома могут быть выполнены из газосиликатных блоков или силикатного кирпича. По плану в доме две спальни (13,57 м², 13,57 м²), просторная кухня-гостиная (26,97 м²) и терраса (14,03 м²).


Общие технические характеристики дома
  • Внешняя площадь здания 99,5 м²
  • Жилая (общая) площадь: 86 м²
  • Площадь застройки: 99,5 м²
  • Высота 1-го этажа: 3 м
  • Угол наклона кровли: 30°
  • Площадь крыши дома: 119,62 м²
  • Площадь крыши террасы: 16,06 м²
  • Площадь крыши крыльца: 3,79 м²

Похожие проекты домов

Одноэтажный дом с двумя спальнями 89м² (S19)
Одноэтажный дом с двумя спальнями 69м² (S23)
Одноэтажный дом с двумя спальнями 91м² (S37)
Одноэтажный дом с двумя спальнями 60м² (S38)
Одноэтажный дом с двумя спальнями 83м² (S46)
Одноэтажный дом с двумя спальнями 102м² (S49)
Одноэтажный дом с двумя спальнями 56м² (S56)
Одноэтажный дом с двумя спальнями 42м² (S55)
Сравнить
0