Одноэтажный дом с двумя спальнями 67м² (S66)

Артикул: S66
Артикул: S66
Одноэтажный дом с двумя спальнями 67м² (S66)
СТОИМОСТЬ УТОЧНЯЙТЕ ПО ТЕЛЕФОНУ 8(8452)77-80-80

Стоимость строительства дома по данному проекту указана справочно и зависит от комплектации, технических условий и актуальных цен на стройматериалы! Консультация по проекту по телефону (8452) 77-80-80.


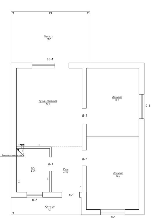
Готовый проект одноэтажного дома общей площадью 67,4 м². Стены дома могут быть выполнены из газосиликатных блоков или силикатного кирпича. По плану в доме холл (4,55 м²), кухня-гостиная (16,9 м²), санузел (4,75 м²), 2 комнаты (11,7 м², 12,3 м²), терраса (13,2 м²).


Общие технические характеристики дома
  • Внешняя площадь здания 77 м²
  • Общая площадь: 67,4 м²
  • Площадь застройки: 79,4 м²
  • Высота 1-го этажа: 3 м
  • Угол наклона кровли: 3
  • Площадь кровельного покрытия: 111,8 м²

Стоимость строительства дома по данному проекту указана справочно и зависит от комплектации, технических условий и актуальных цен на стройматериалы! Консультация по проекту по телефону (8452) 77-80-80.


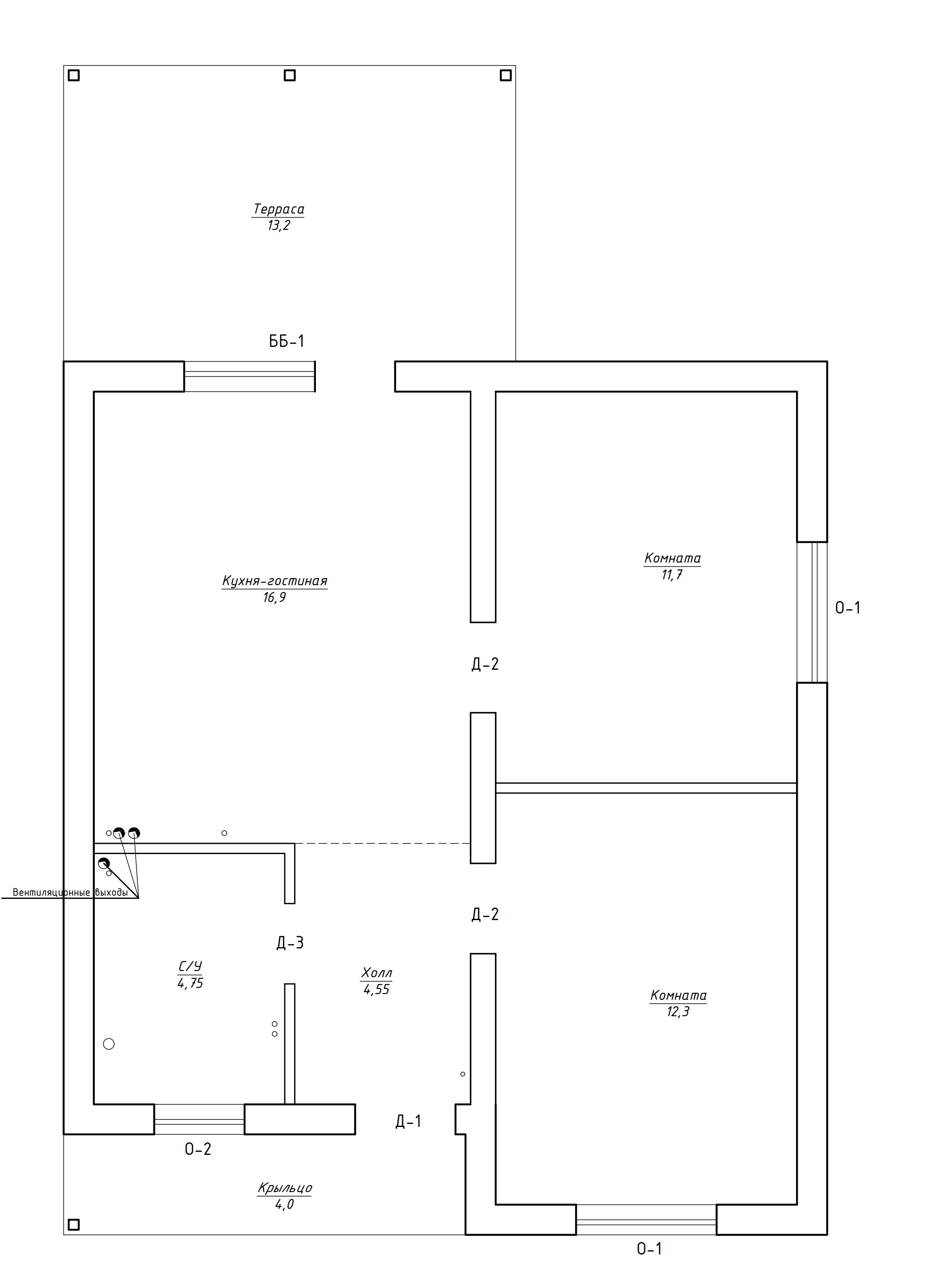
Готовый проект одноэтажного дома общей площадью 67,4 м². Стены дома могут быть выполнены из газосиликатных блоков или силикатного кирпича. По плану в доме холл (4,55 м²), кухня-гостиная (16,9 м²), санузел (4,75 м²), 2 комнаты (11,7 м², 12,3 м²), терраса (13,2 м²).


Общие технические характеристики дома
  • Внешняя площадь здания 77 м²
  • Общая площадь: 67,4 м²
  • Площадь застройки: 79,4 м²
  • Высота 1-го этажа: 3 м
  • Угол наклона кровли: 3
  • Площадь кровельного покрытия: 111,8 м²

Похожие проекты домов

Одноэтажный дом с двумя спальнями 89м² (S19)
Одноэтажный дом с двумя спальнями 69м² (S23)
Одноэтажный дом с двумя спальнями 91м² (S37)
Одноэтажный дом с двумя спальнями 60м² (S38)
Одноэтажный дом с двумя спальнями 83м² (S46)
Одноэтажный дом с двумя спальнями 86м² (S48)
Одноэтажный дом с двумя спальнями 102м² (S49)
Одноэтажный дом с двумя спальнями 42м² (S55)
Сравнить
0