Двухэтажный дом с четырьмя спальнями 140м² (S6)

Артикул: S6
Артикул: S6
Двухэтажный дом с четырьмя спальнями 140м² (S6)
СТОИМОСТЬ УТОЧНЯЙТЕ ПО ТЕЛЕФОНУ 8(8452)77-80-80

Стоимость строительства дома по данному проекту указана справочно и зависит от комплектации, технических условий и актуальных цен на стройматериалы! Консультация по проекту по телефону (8452) 77-80-80.


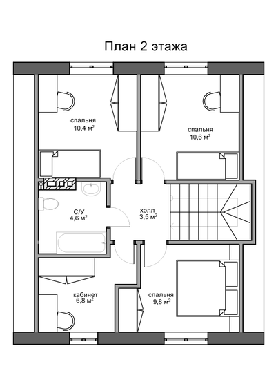
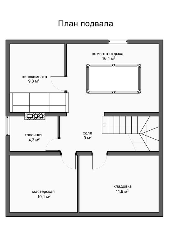
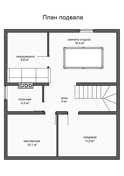
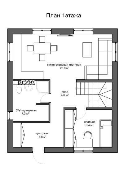
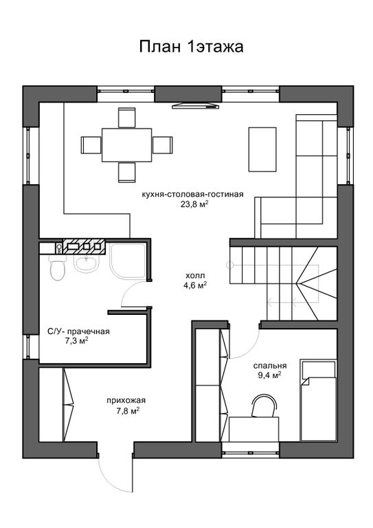
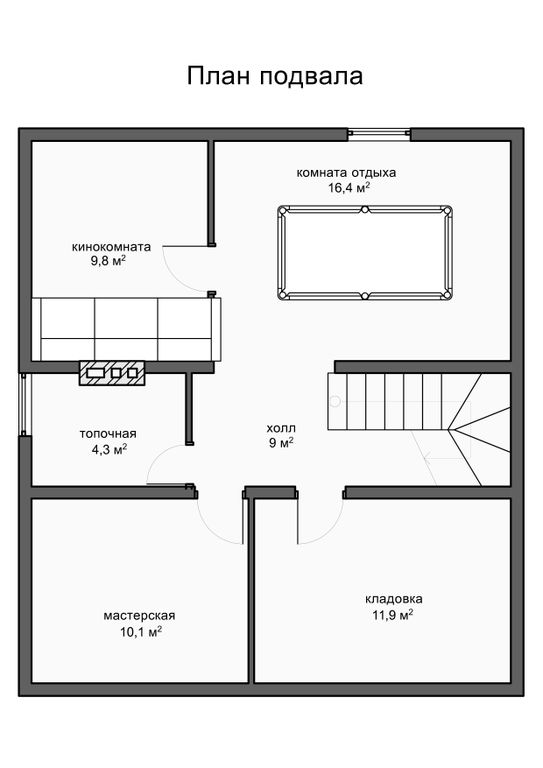
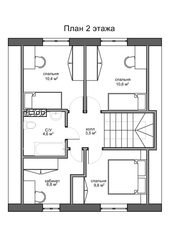
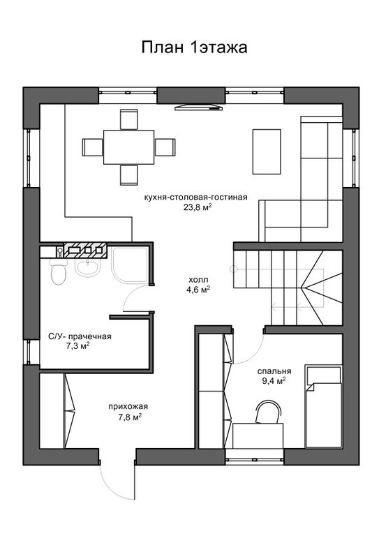
Проект дома с мансардой и цокольным этажом общей площадью 160 м². Стены дома могут быть выполнены из газосиликатных блоков или силикатного кирпича. По плану на первом этаже дома кухня-гостиная (23,8 м²), спальня (9,4 м²), прихожая (7,8 м²), санузел (7,3 м²). На втором этаже 3 спальни (9,8 м², 10,4 м², 10,6 м²), кабинет (6,8 м²) и санузел (4,6 м²). В подвале комната отдыха (16,4 м²), кинокомната (9,8 м²) и технические помещения.


Общие технические характеристики дома
  • Внешняя площадь здания 184 м²
  • Жилая (общая) площадь: 140 м²
  • Площадь застройки: 70 м²
  • Кубатура: 540 м³
  • Высота 1-го этажа: 2,8 м
  • Высота 2-го этажа: 2,5 м
  • Угол наклона кровли: 30°

Стоимость строительства дома по данному проекту указана справочно и зависит от комплектации, технических условий и актуальных цен на стройматериалы! Консультация по проекту по телефону (8452) 77-80-80.


Проект дома с мансардой и цокольным этажом общей площадью 160 м². Стены дома могут быть выполнены из газосиликатных блоков или силикатного кирпича. По плану на первом этаже дома кухня-гостиная (23,8 м²), спальня (9,4 м²), прихожая (7,8 м²), санузел (7,3 м²). На втором этаже 3 спальни (9,8 м², 10,4 м², 10,6 м²), кабинет (6,8 м²) и санузел (4,6 м²). В подвале комната отдыха (16,4 м²), кинокомната (9,8 м²) и технические помещения.


Общие технические характеристики дома
  • Внешняя площадь здания 184 м²
  • Жилая (общая) площадь: 140 м²
  • Площадь застройки: 70 м²
  • Кубатура: 540 м³
  • Высота 1-го этажа: 2,8 м
  • Высота 2-го этажа: 2,5 м
  • Угол наклона кровли: 30°