Двухэтажный дом с четырьмя спальнями 245м² (S18)

Артикул: S18
Артикул: S18
Двухэтажный дом с четырьмя спальнями 245м² (S18)
СТОИМОСТЬ УТОЧНЯЙТЕ ПО ТЕЛЕФОНУ 8(8452)77-80-80

Стоимость строительства дома по данному проекту указана справочно и зависит от комплектации, технических условий и актуальных цен на стройматериалы! Консультация по проекту по телефону (8452) 77-80-80.


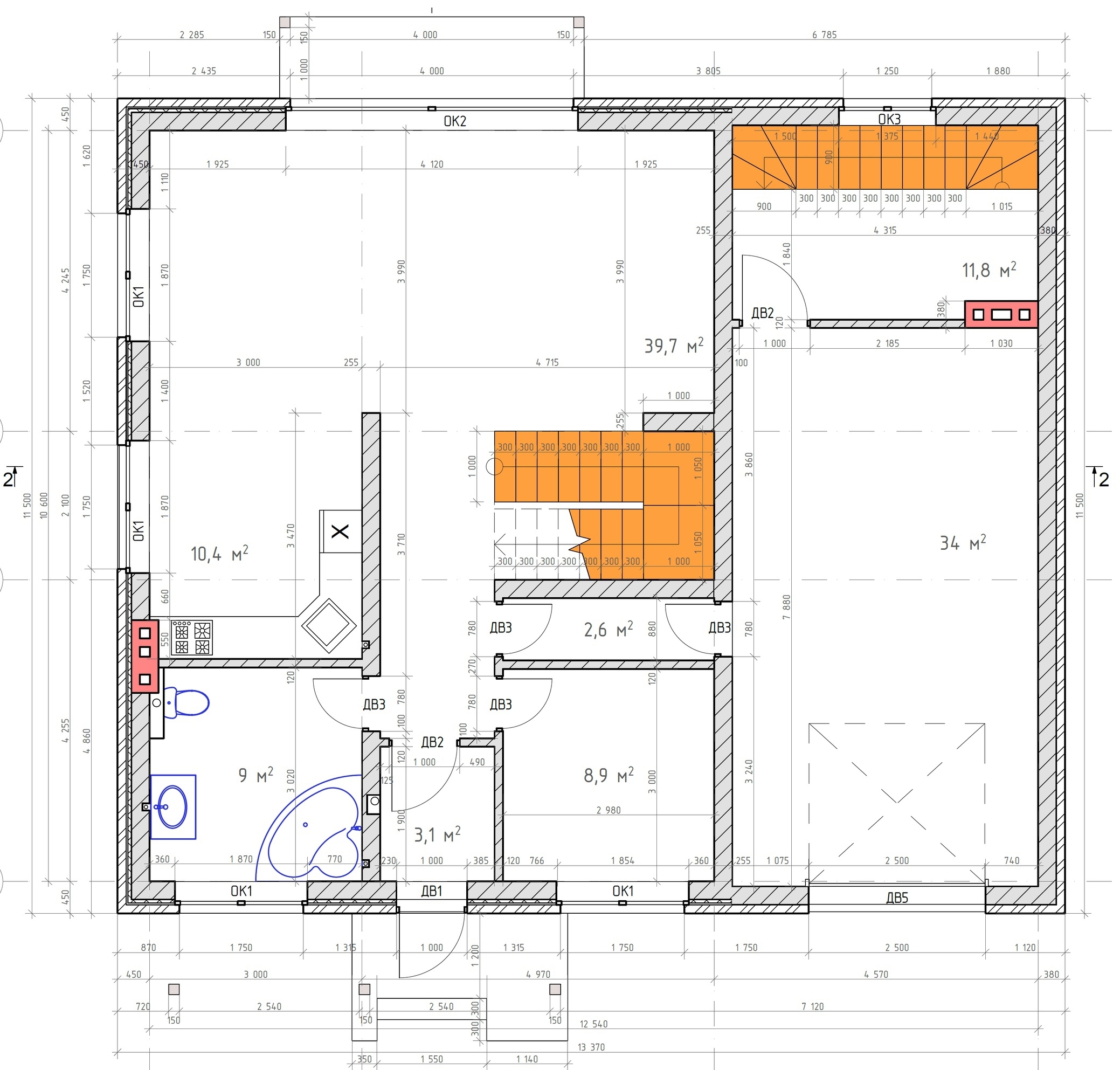
Готовый проект двухэтажного дома общей площадью 217,4 м². Стены дома могут быть выполнены из газосиликатных блоков или силикатного кирпича. По плану в доме четыре спальни, просторная кухня и гостиная.


Общие технические характеристики дома
  • Внешняя площадь здания 255 м²
  • Жилая (общая) площадь: 217,4 м²
  • Площадь застройки: 230 м²
  • Высота 1-го этажа: 3 м
  • Угол наклона кровли: 30°
  • Площадь кровли 1-го этажа: 86 м²
  • Площадь кровли 2-го этажа: 145 м²

Стоимость строительства дома по данному проекту указана справочно и зависит от комплектации, технических условий и актуальных цен на стройматериалы! Консультация по проекту по телефону (8452) 77-80-80.


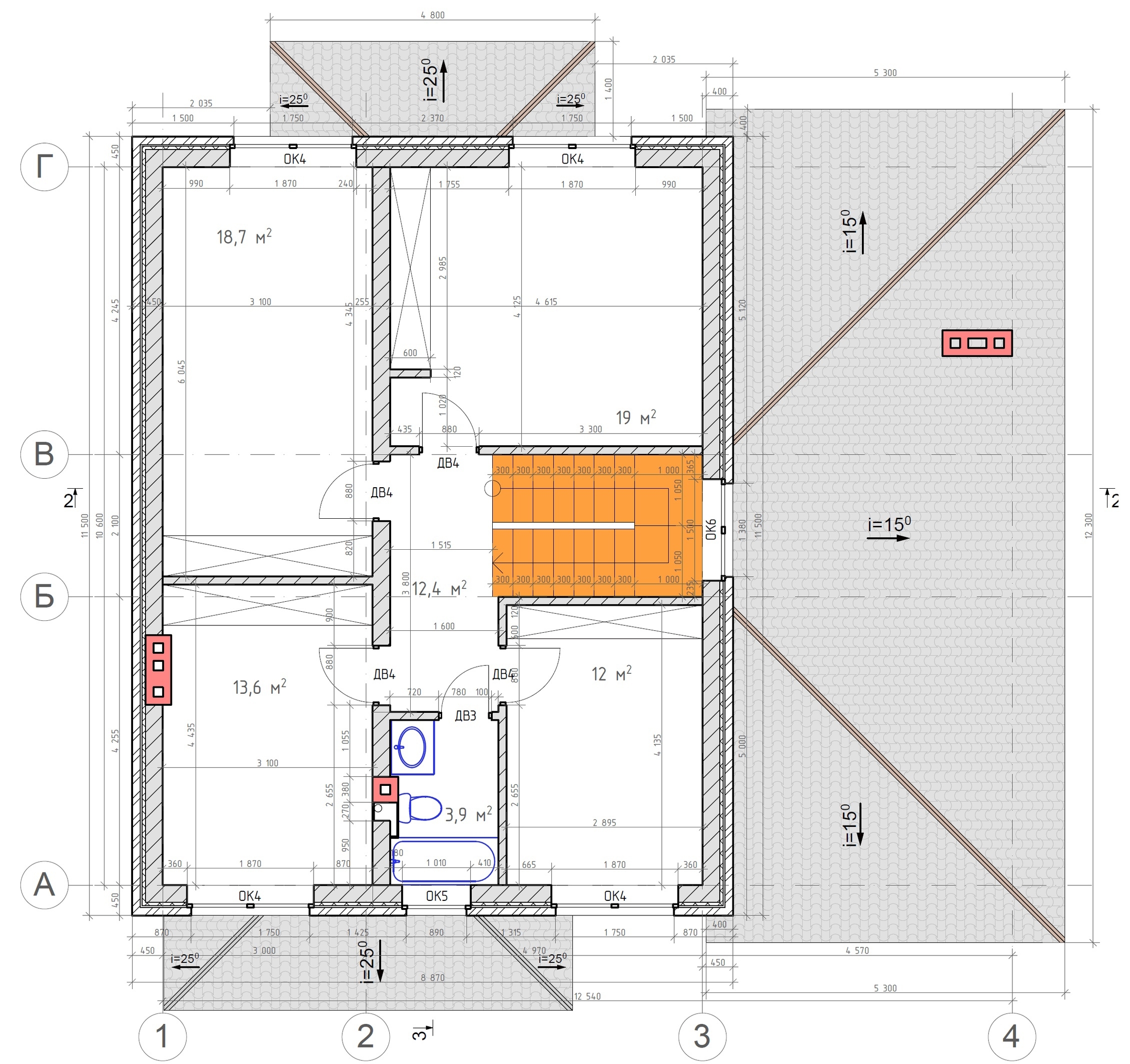
Готовый проект двухэтажного дома общей площадью 217,4 м². Стены дома могут быть выполнены из газосиликатных блоков или силикатного кирпича. По плану в доме четыре спальни, просторная кухня и гостиная.


Общие технические характеристики дома
  • Внешняя площадь здания 255 м²
  • Жилая (общая) площадь: 217,4 м²
  • Площадь застройки: 230 м²
  • Высота 1-го этажа: 3 м
  • Угол наклона кровли: 30°
  • Площадь кровли 1-го этажа: 86 м²
  • Площадь кровли 2-го этажа: 145 м²