Двухэтажный дом с четырьмя спальнями 195м² (S20)

Артикул: S20
Артикул: S20
Двухэтажный дом с четырьмя спальнями 195м² (S20)
СТОИМОСТЬ УТОЧНЯЙТЕ ПО ТЕЛЕФОНУ 8(8452)77-80-80

Стоимость строительства дома по данному проекту указана справочно и зависит от комплектации, технических условий и актуальных цен на строительные материалы! Получить консультацию по проекту можно по телефону (8452) 77-80-80


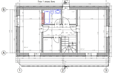
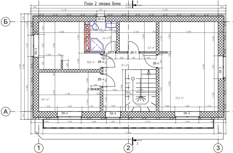
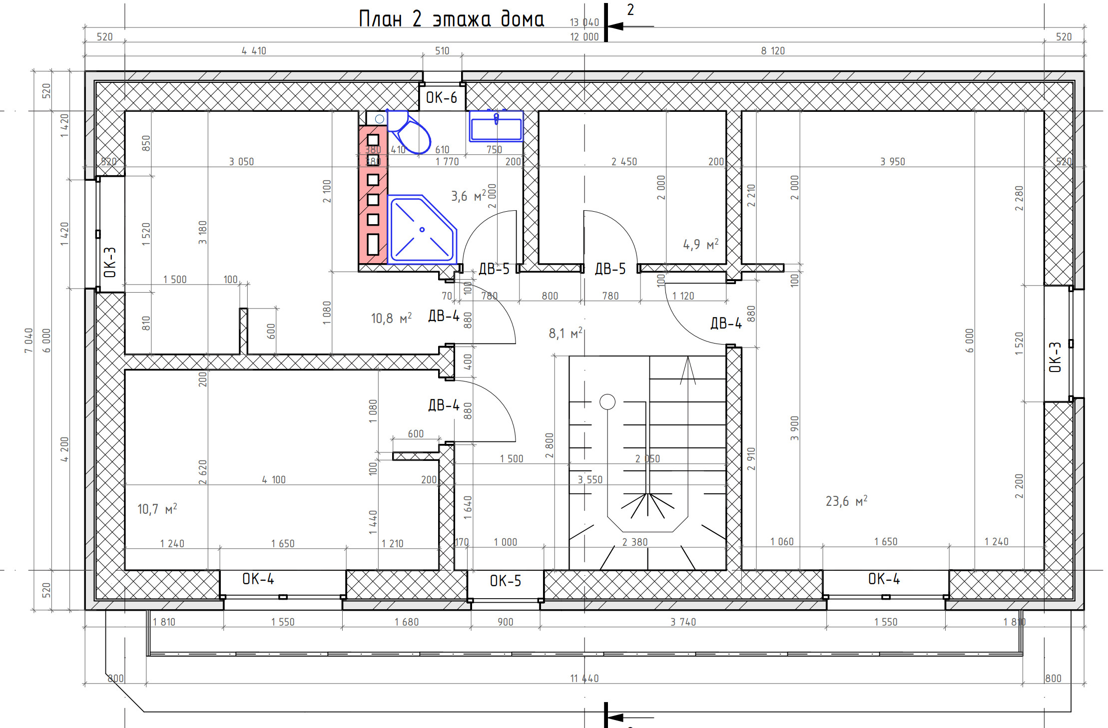
Готовый проект двухэтажного дома общей площадью 195,1 м². Стены дома могут быть выполнены из газосиликатных блоков или силикатного кирпича. По плану в доме четыре спальни, просторная кухня и гостиная.


Общие технические характеристики дома
  • Внешняя площадь здания 183 м²
  • Общая площадь дома: 195,1 м²
  • Площадь подвала дома: 70,1 м²
  • Площадь 1 этажа дома: 63,3 м²
  • Площадь 2 этажа дома: 61,7 м²
  • Площадь застройки: 288 м²
  • Высота 1-го этажа: 3 м
  • Угол наклона кровли: 30°
  • Площадь кровли: 146 м²
  • Площадь кровли навеса для машины: 38 м²

Стоимость строительства дома по данному проекту указана справочно и зависит от комплектации, технических условий и актуальных цен на строительные материалы! Получить консультацию по проекту можно по телефону (8452) 77-80-80


Готовый проект двухэтажного дома общей площадью 195,1 м². Стены дома могут быть выполнены из газосиликатных блоков или силикатного кирпича. По плану в доме четыре спальни, просторная кухня и гостиная.


Общие технические характеристики дома
  • Внешняя площадь здания 183 м²
  • Общая площадь дома: 195,1 м²
  • Площадь подвала дома: 70,1 м²
  • Площадь 1 этажа дома: 63,3 м²
  • Площадь 2 этажа дома: 61,7 м²
  • Площадь застройки: 288 м²
  • Высота 1-го этажа: 3 м
  • Угол наклона кровли: 30°
  • Площадь кровли: 146 м²
  • Площадь кровли навеса для машины: 38 м²