Двухэтажный дом с четырьмя спальнями 183м² (S81)

Артикул: S81
Артикул: S81
Двухэтажный дом с четырьмя спальнями 183м² (S81)
СТОИМОСТЬ УТОЧНЯЙТЕ ПО ТЕЛЕФОНУ 8(8452)77-80-80

Стоимость строительства дома по данному проекту указана справочно и зависит от комплектации, технических условий и актуальных цен на стройматериалы! Консультация по проекту по телефону (8452) 77-80-80.


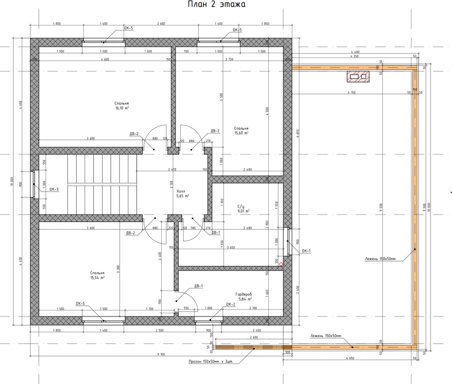
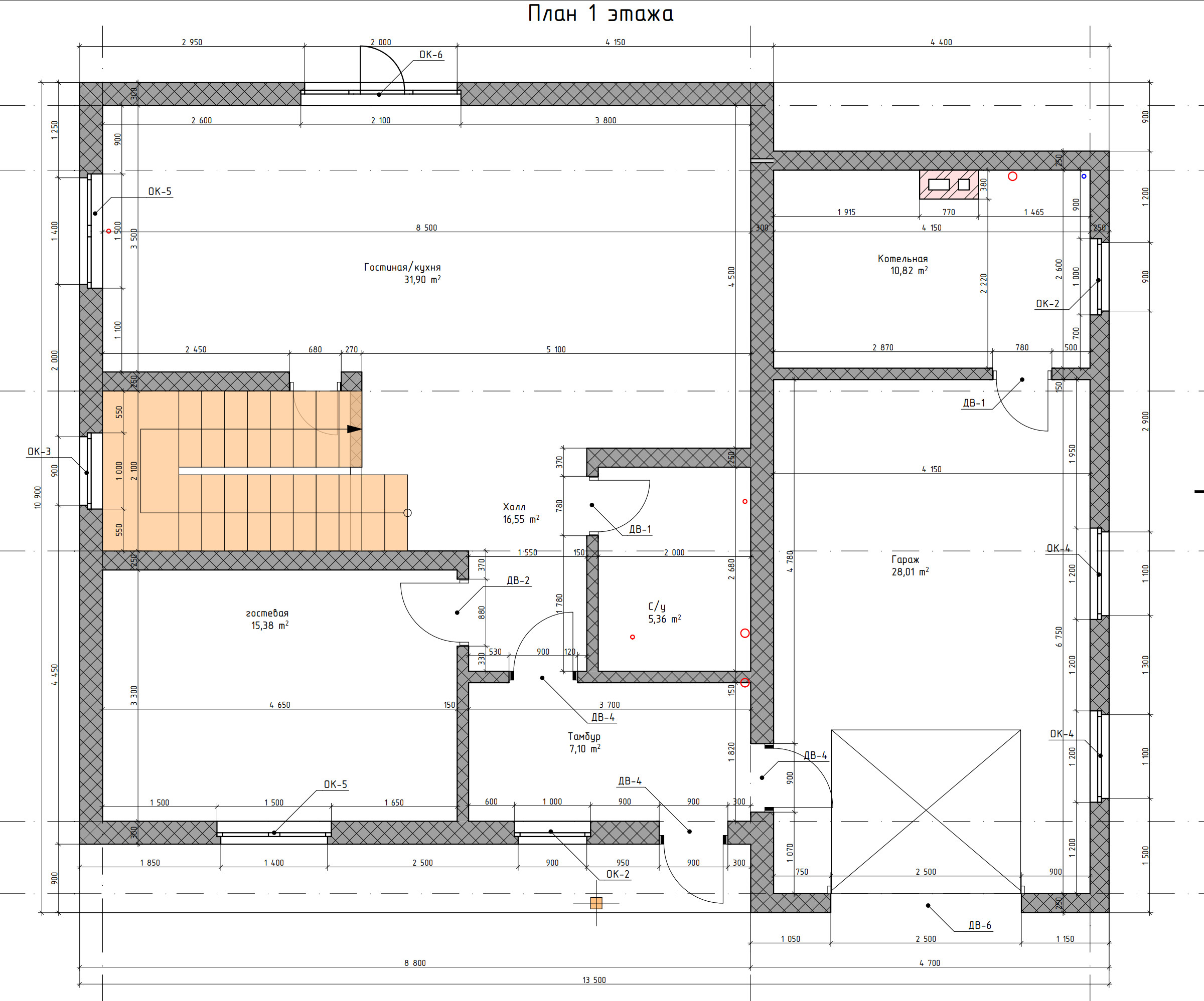
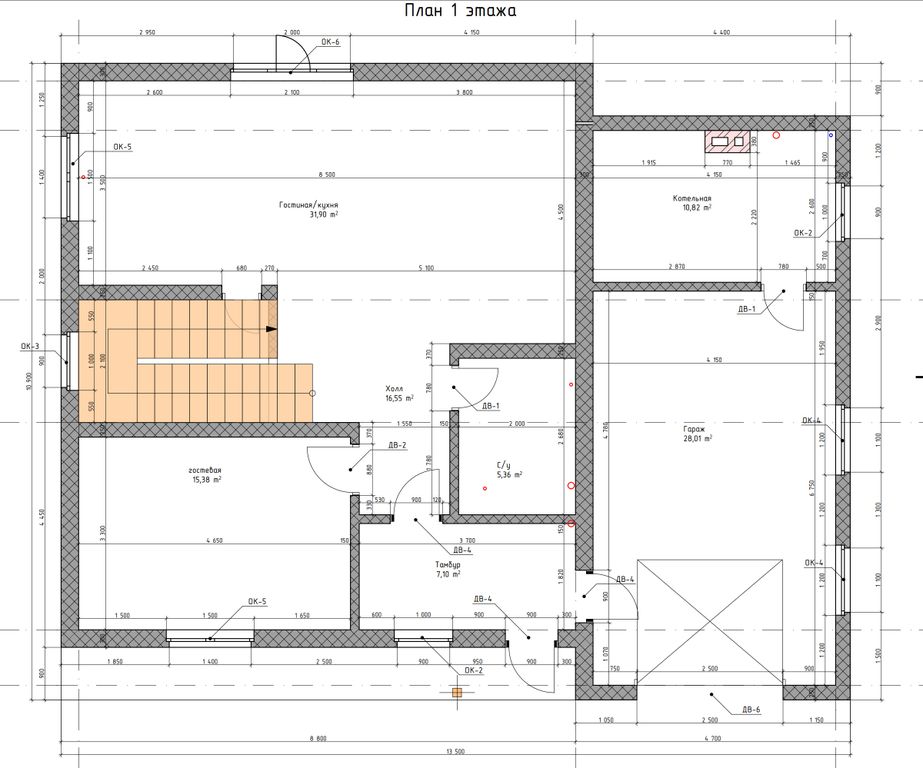
Готовый проект двухэтажного дома общей площадью 182,87 м². Стены дома могут быть выполнены из газосиликатных блоков или силикатного кирпича. По плану в доме котельная (10,82 м²), 2 санузла (5,36 м², 9,01 м²) 4 спальни (15,38 м², 15,54 м², 15,60 м², 16,10 м²), гардероб (5,84 м²), просторная кухня-гостиная (31,90 м²) и гараж (28,01 м²).


Общие технические характеристики дома
  • Внешняя площадь здания 238 м²
  • Общая площадь: 182,87 м²
  • Высота 1-го этажа: 3 м
  • Угол наклона кровли: 30°
  • Площадь крыши дома: 122,76 м²
  • Площадь крыши гаража: 59,71 м²

Стоимость строительства дома по данному проекту указана справочно и зависит от комплектации, технических условий и актуальных цен на стройматериалы! Консультация по проекту по телефону (8452) 77-80-80.


Готовый проект двухэтажного дома общей площадью 182,87 м². Стены дома могут быть выполнены из газосиликатных блоков или силикатного кирпича. По плану в доме котельная (10,82 м²), 2 санузла (5,36 м², 9,01 м²) 4 спальни (15,38 м², 15,54 м², 15,60 м², 16,10 м²), гардероб (5,84 м²), просторная кухня-гостиная (31,90 м²) и гараж (28,01 м²).


Общие технические характеристики дома
  • Внешняя площадь здания 238 м²
  • Общая площадь: 182,87 м²
  • Высота 1-го этажа: 3 м
  • Угол наклона кровли: 30°
  • Площадь крыши дома: 122,76 м²
  • Площадь крыши гаража: 59,71 м²

Похожие проекты домов

Двухэтажный дом с четырьмя спальнями 144м² (S21)
Двухэтажный дом с четырьмя спальнями 153.52м² (S27)
Двухэтажный дом с четырьмя спальнями 182м² (S39)
Двухэтажный дом с четырьмя спальнями 153м² (S41)
Двухэтажный дом с четырьмя спальнями 165м² (S44)
Сравнить
0