Одноэтажный каркасный дом с одной спальней 23м² (SK44)

Артикул: SK44
Артикул: SK44
Одноэтажный каркасный дом с одной спальней 23м² (SK44)
СТОИМОСТЬ УТОЧНЯЙТЕ ПО ТЕЛЕФОНУ 8(8452)77-80-80

Стоимость строительства дома по данному проекту указана справочно и зависит от комплектации, технических условий и актуальных цен на стройматериалы! Консультация по проекту по телефону (8452) 77-80-80.


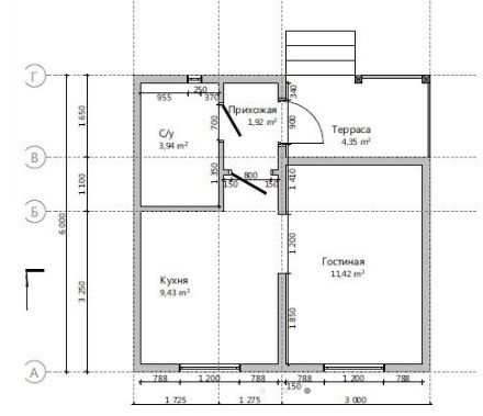
Готовый проект одноэтажного дома общей площадью 23 м² для строительства по каркасной технологииПо плану в доме прихожая, санузел, кухня, гостиная и терраса.


Общие технические характеристики дома
  • Общая площадь: 23 м²
  • Площадь застройки: 36 м²
  • Высота 1 этажа: 2,8 м
  • Угол наклона кровли: 30°
  • Площадь крыши: 45 м²

Стоимость строительства дома по данному проекту указана справочно и зависит от комплектации, технических условий и актуальных цен на стройматериалы! Консультация по проекту по телефону (8452) 77-80-80.


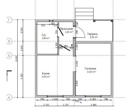
Готовый проект одноэтажного дома общей площадью 23 м² для строительства по каркасной технологииПо плану в доме прихожая, санузел, кухня, гостиная и терраса.


Общие технические характеристики дома
  • Общая площадь: 23 м²
  • Площадь застройки: 36 м²
  • Высота 1 этажа: 2,8 м
  • Угол наклона кровли: 30°
  • Площадь крыши: 45 м²