Одноэтажный каркасный дом с одной спальней 39м² (SK42)

Артикул: SK42
Одноэтажный каркасный дом с одной спальней 39м² (SK42)

Стоимость строительства дома по данному проекту указана справочно и зависит от комплектации, технических условий и актуальных цен на стройматериалы! Консультация по проекту по телефону (8452) 77-80-80.


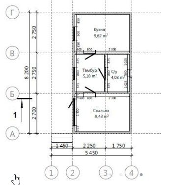
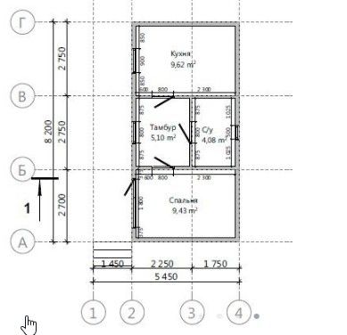
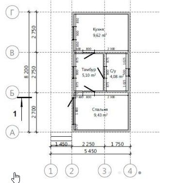
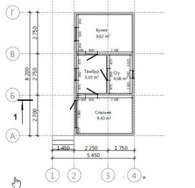
Готовый проект одноэтажного дома общей площадью 39 м² для строительства по каркасной технологииПо плану в доме тамбур, санузел, кухня и спальня.


Общие технические характеристики дома
  • Общая площадь: 39 м²
  • Площадь застройки: 47 м²
  • Высота 1 этажа: 2,8 м
  • Угол наклона кровли: 30°
  • Площадь крыши: 53 м²
СТОИМОСТЬ УТОЧНЯЙТЕ ПО ТЕЛЕФОНУ 8(8452)77-80-80

Стоимость строительства дома по данному проекту указана справочно и зависит от комплектации, технических условий и актуальных цен на стройматериалы! Консультация по проекту по телефону (8452) 77-80-80.


Готовый проект одноэтажного дома общей площадью 39 м² для строительства по каркасной технологииПо плану в доме тамбур, санузел, кухня и спальня.


Общие технические характеристики дома
  • Общая площадь: 39 м²
  • Площадь застройки: 47 м²
  • Высота 1 этажа: 2,8 м
  • Угол наклона кровли: 30°
  • Площадь крыши: 53 м²
  • Описание

    Проект SK42 «Одноэтажный дом 39 м²» разработан профессиональными архитекторами в соответствии с действующими строительными нормами и правилами (СНиП), стандартами (ГОСТ), региональными нормативами. При проектировании дома учтены особенности локального рынка стройматериалов и наш позитивный опыт сотрудничества с поставщиками. Проект отлично подходит для строительства дома «под ключ» в любой точке Саратова, Энгельса и Саратовской области, а также для получения льготной ипотеки на строительство частного дома (в том числе с использованием маткапитала).


    Варианты комплектации дома


    «Дача»


    Фундамент
    — Монолитная плита с ребрами жесткости.
    — Высота цоколя 30 см.


    Стены дома
    — Несущие стены (доска 150х50 мм).

    — Межкомнатные перегородки (доска 100х50 мм).


    Кровля
    — Материал покрытия — металлочерепица «Монтеррей»
     Подшив карнизов (профлист C8).



    «Коттедж»


    Фундамент
    — Монолитная плита с ребрами жесткости.
    — Высота цоколя 30 см.


    Стены дома
    — Несущие стены (доска 150х50 мм).
    — Межкомнатные перегородки (доска 100х50 мм).

    — Утепление внешних стен (150 мм).


    Кровля
     Материал покрытия металлочерепица/клик фальц.
    — Подшив карнизов (профлист C8).
    — Потолок верхнего этажа утепленный (минеральная вата 200 мм).
    — Черновой подшив потолка.


    Отделка фасада
    — Имитация бруса


    Внутренняя отделка

    — Имитация бруса.


    Окна и входная дверь
    — Пластиковые окна без ламинации.
    — Металлическая входная дверь Torex (Торэкс).



    «Коттедж+»


    Фундамент
    — Монолитная плита с ребрами жесткости.
    — Высота цоколя 30 см.


    Стены дома
    — Несущие стены (доска 200х50 мм).
    — Межкомнатные перегородки (доска 100х50 мм).

    — Утепление внешних стен (200 мм).


    Кровля
    — Материал покрытия — гибкая черепица.
    — Подшив карнизов (профлист C8).
    — Потолок верхнего этажа утепленный (минеральная вата 200 мм).
    — Черновой подшив потолка.
    — Снегозадержатели.
    — Водосточная система.


    Отделка фасада
    — Имитация бруса


    Внутренняя отделка

    — Имитация бруса


    Окна и входная дверь
    — Пластиковые окна без ламинации.
    — Металлическая входная дверь Torex (Торэкс).



    В зависимости от параметров участка и пожеланий Заказчика возможна адаптация проекта под технические условия, внесение линейных изменений, перепланировка, пристройка веранды, террасы, навеса, гаража и других объектов.


    Получить консультацию по проекту, пригласить специалиста для составления сметы и заказать строительство дома «под ключ» можно по телефону (8452) 77-80-80 или онлайн. Мы обязательно дадим полезные советы и рекомендации, сориентируем по срокам строительства, предложим максимально честные цены на строительные и монтажные работы.

  • Документы

    План 1-го этажа (проект SK42)
    19.1 кб, 30 октября в 15:36
  • Характеристики

    Внутренняя площадь дома
    есть
    Количество спален в доме
    есть
    Количество этажей
    есть
  • Комментарии 0

Проект SK42 «Одноэтажный дом 39 м²» разработан профессиональными архитекторами в соответствии с действующими строительными нормами и правилами (СНиП), стандартами (ГОСТ), региональными нормативами. При проектировании дома учтены особенности локального рынка стройматериалов и наш позитивный опыт сотрудничества с поставщиками. Проект отлично подходит для строительства дома «под ключ» в любой точке Саратова, Энгельса и Саратовской области, а также для получения льготной ипотеки на строительство частного дома (в том числе с использованием маткапитала).


Варианты комплектации дома


«Дача»


Фундамент
— Монолитная плита с ребрами жесткости.
— Высота цоколя 30 см.


Стены дома
— Несущие стены (доска 150х50 мм).

— Межкомнатные перегородки (доска 100х50 мм).


Кровля
— Материал покрытия — металлочерепица «Монтеррей»
 Подшив карнизов (профлист C8).



«Коттедж»


Фундамент
— Монолитная плита с ребрами жесткости.
— Высота цоколя 30 см.


Стены дома
— Несущие стены (доска 150х50 мм).
— Межкомнатные перегородки (доска 100х50 мм).

— Утепление внешних стен (150 мм).


Кровля
 Материал покрытия металлочерепица/клик фальц.
— Подшив карнизов (профлист C8).
— Потолок верхнего этажа утепленный (минеральная вата 200 мм).
— Черновой подшив потолка.


Отделка фасада
— Имитация бруса


Внутренняя отделка

— Имитация бруса.


Окна и входная дверь
— Пластиковые окна без ламинации.
— Металлическая входная дверь Torex (Торэкс).



«Коттедж+»


Фундамент
— Монолитная плита с ребрами жесткости.
— Высота цоколя 30 см.


Стены дома
— Несущие стены (доска 200х50 мм).
— Межкомнатные перегородки (доска 100х50 мм).

— Утепление внешних стен (200 мм).


Кровля
— Материал покрытия — гибкая черепица.
— Подшив карнизов (профлист C8).
— Потолок верхнего этажа утепленный (минеральная вата 200 мм).
— Черновой подшив потолка.
— Снегозадержатели.
— Водосточная система.


Отделка фасада
— Имитация бруса


Внутренняя отделка

— Имитация бруса


Окна и входная дверь
— Пластиковые окна без ламинации.
— Металлическая входная дверь Torex (Торэкс).



В зависимости от параметров участка и пожеланий Заказчика возможна адаптация проекта под технические условия, внесение линейных изменений, перепланировка, пристройка веранды, террасы, навеса, гаража и других объектов.


Получить консультацию по проекту, пригласить специалиста для составления сметы и заказать строительство дома «под ключ» можно по телефону (8452) 77-80-80 или онлайн. Мы обязательно дадим полезные советы и рекомендации, сориентируем по срокам строительства, предложим максимально честные цены на строительные и монтажные работы.

План 1-го этажа (проект SK42)
19.1 кб, 30 октября в 15:36
Внутренняя площадь дома
есть
Количество спален в доме
есть
Количество этажей
есть

Удалить товар

Вы точно хотите удалить выбранный товар? Отменить данное действие будет невозможно.

Похожие проекты домов

Одноэтажный каркасный дом с одной спальней 45м² (SK68)
Одноэтажный каркасный дом с одной спальней 50м² (SK66)
Одноэтажный каркасный дом с одной спальней 81м² (SK58)
Одноэтажный каркасный дом с одной спальней 23м² (SK44)
Одноэтажный каркасный дом с одной спальней 45м² (SK31)
Одноэтажный каркасный дом с одной спальней 75м² (SK23)
Сравнить
0

Удалить товар

Вы точно хотите удалить выбранный товар? Отменить данное действие будет невозможно.