Двухэтажный дом с тремя спальнями 121м² (S5)

Артикул: S5
Артикул: S5
Двухэтажный дом с тремя спальнями 121м² (S5)
СТОИМОСТЬ УТОЧНЯЙТЕ ПО ТЕЛЕФОНУ 8(8452)77-80-80

Стоимость строительства дома по данному проекту указана справочно и зависит от комплектации, технических условий и актуальных цен на строительные материалы! Получить консультацию по проекту можно по телефону (8452) 77-80-80.


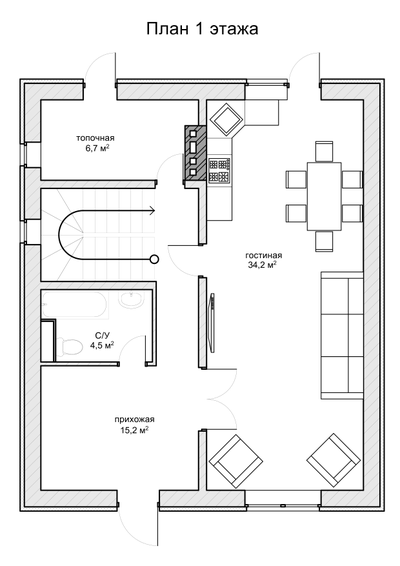
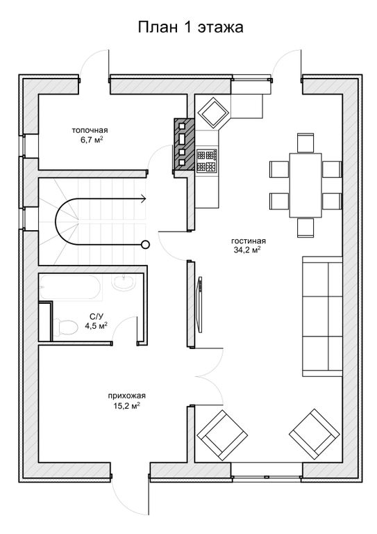
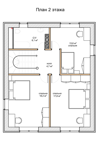
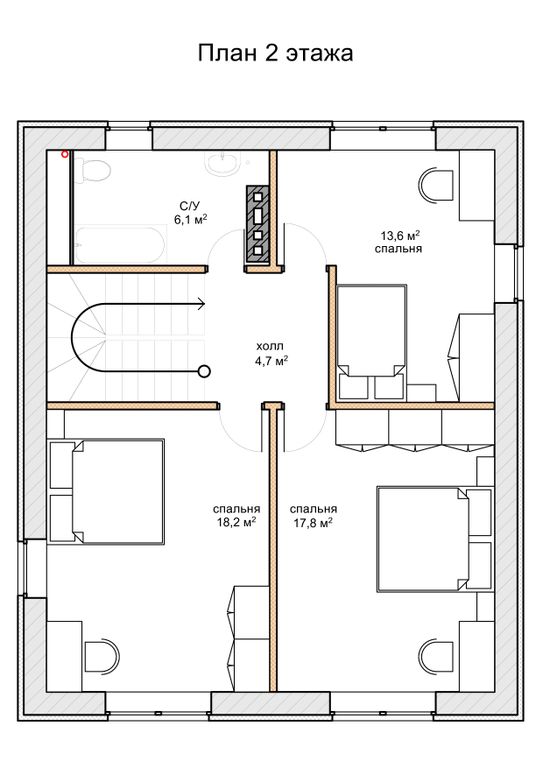
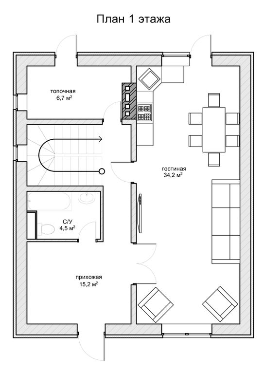
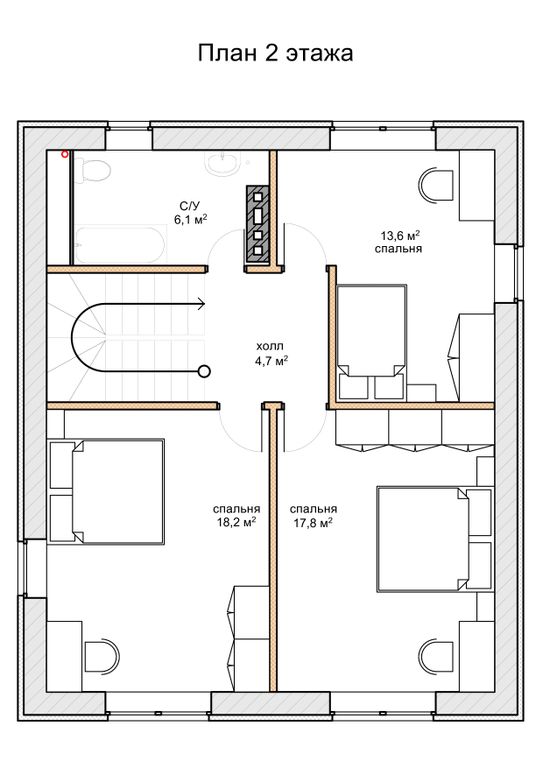
Готовый проект двухэтажного дома общей площадью 121 м². Второй этаж мансардный. Стены дома могут быть выполнены из газосиликатных блоков или силикатного кирпича. По плану на первом этаже дома большая гостиная (34,2 м²), прихожая (15,2 м²), топочная (6,7 м²) и санузел (4,5 м²). На втором этаже холл (4,7 м²), санузел (6,1 м²) и три спальных комнаты (13,6 м², 17,8 м² и 18,2 м²).


Общие технические характеристики дома

  • Внешняя площадь здания 139 м²
  • Жилая (общая) площадь: 121 м²
  • Площадь застройки: 70 м²
  • Кубатура: 320 м³
  • Высота 1-го этажа: 2,8 м
  • Высота 2-го этажа: 2,5 м
  • Угол наклона кровли: 30°
  • Площадь крыши: 110 м²

Стоимость строительства дома по данному проекту указана справочно и зависит от комплектации, технических условий и актуальных цен на строительные материалы! Получить консультацию по проекту можно по телефону (8452) 77-80-80.


Готовый проект двухэтажного дома общей площадью 121 м². Второй этаж мансардный. Стены дома могут быть выполнены из газосиликатных блоков или силикатного кирпича. По плану на первом этаже дома большая гостиная (34,2 м²), прихожая (15,2 м²), топочная (6,7 м²) и санузел (4,5 м²). На втором этаже холл (4,7 м²), санузел (6,1 м²) и три спальных комнаты (13,6 м², 17,8 м² и 18,2 м²).


Общие технические характеристики дома

  • Внешняя площадь здания 139 м²
  • Жилая (общая) площадь: 121 м²
  • Площадь застройки: 70 м²
  • Кубатура: 320 м³
  • Высота 1-го этажа: 2,8 м
  • Высота 2-го этажа: 2,5 м
  • Угол наклона кровли: 30°
  • Площадь крыши: 110 м²