Двухэтажный дом с тремя спальнями 126м² (S107)

Артикул: S107
Артикул: S107
Двухэтажный дом с тремя спальнями 126м² (S107)
СТОИМОСТЬ УТОЧНЯЙТЕ ПО ТЕЛЕФОНУ 8(8452)77-80-80

Стоимость строительства дома по данному проекту указана справочно и зависит от комплектации, технических условий и актуальных цен на стройматериалы! Консультация по проекту по телефону (8452) 77-80-80.


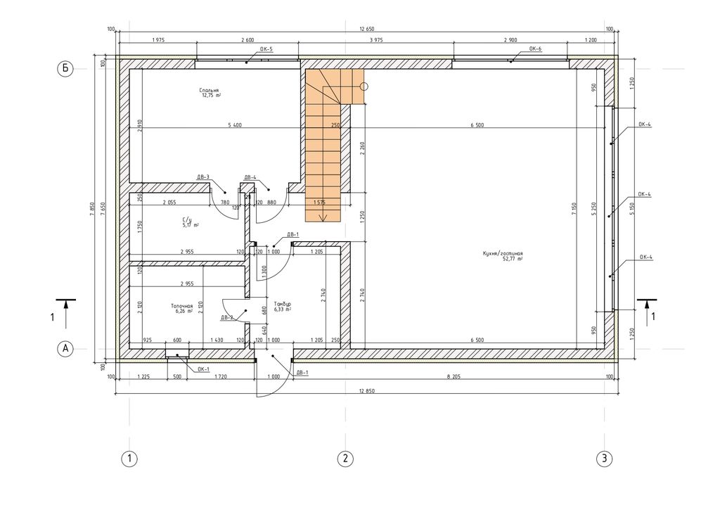
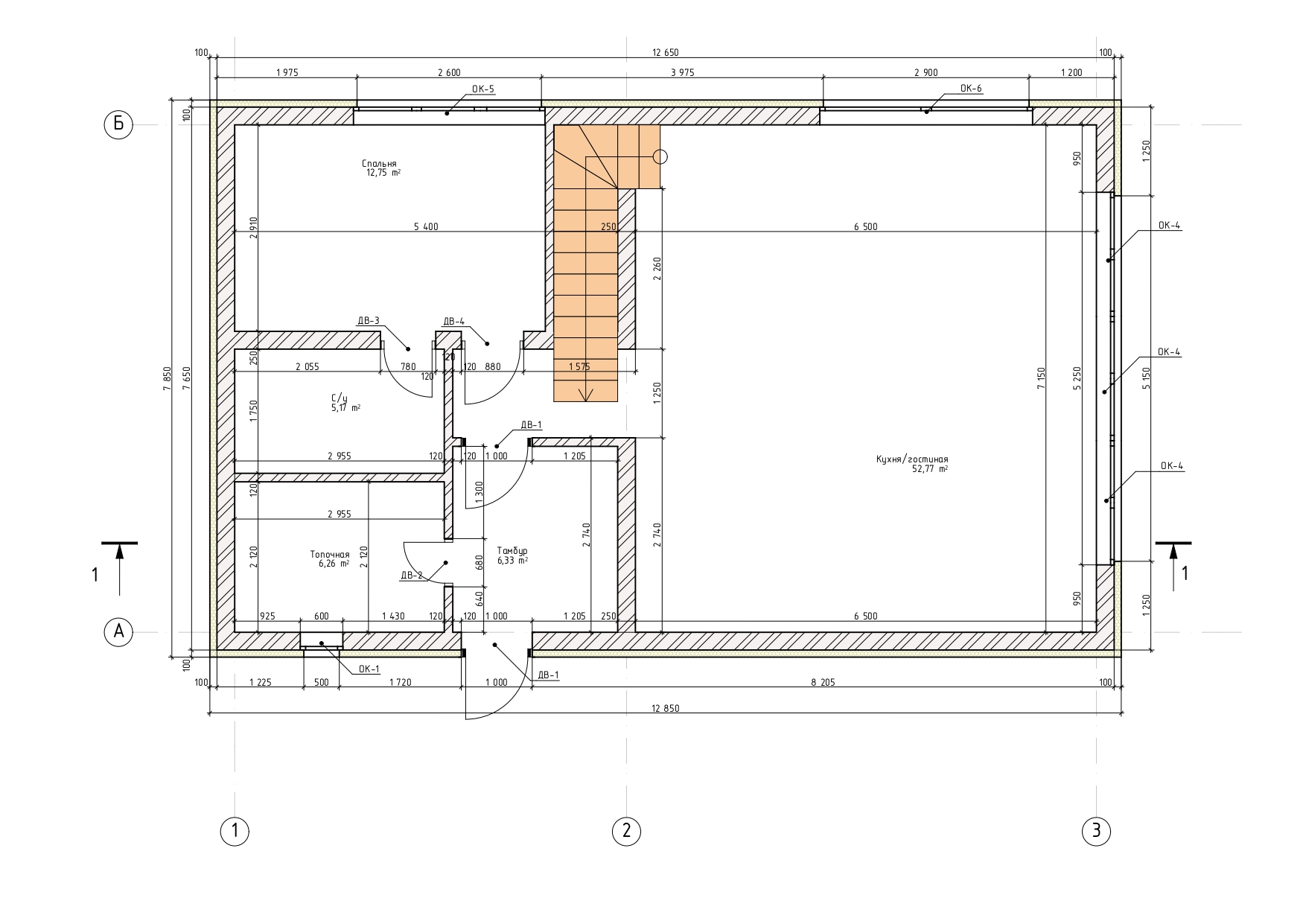
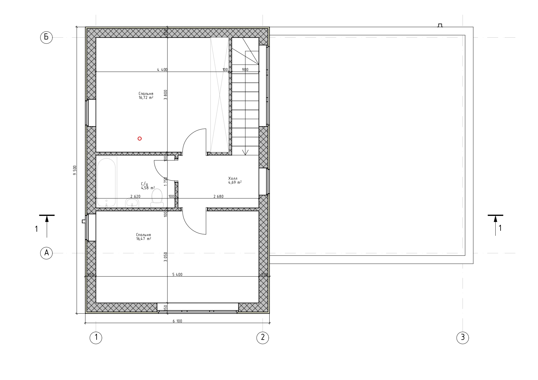
Готовый проект двухэтажного дома общей площадью 126,39 м². Стены дома могут быть выполнены из газосиликатных блоков или силикатного кирпича. По плану в доме тамбур (6.33 м²), топочная (6,26 м²), холл (4,69 м²), кухня-гостиная (52,77 м²), 2 санузла (5,17 м², 4,58 м²), 3 спальни (12,75 м², 16,47 м², 16,72 м²).


Общие технические характеристики дома
  • Внешнаяя площадь здания 157 м²
  • Общая площадь: 126,39 м²
  • Высота 1-го этажа: 3 м

Стоимость строительства дома по данному проекту указана справочно и зависит от комплектации, технических условий и актуальных цен на стройматериалы! Консультация по проекту по телефону (8452) 77-80-80.


Готовый проект двухэтажного дома общей площадью 126,39 м². Стены дома могут быть выполнены из газосиликатных блоков или силикатного кирпича. По плану в доме тамбур (6.33 м²), топочная (6,26 м²), холл (4,69 м²), кухня-гостиная (52,77 м²), 2 санузла (5,17 м², 4,58 м²), 3 спальни (12,75 м², 16,47 м², 16,72 м²).


Общие технические характеристики дома
  • Внешнаяя площадь здания 157 м²
  • Общая площадь: 126,39 м²
  • Высота 1-го этажа: 3 м

Похожие проекты домов

Двухэтажный дом с тремя спальнями 124м² (S32)
Двухэтажный дом с тремя спальнями 164м² (S62)
Двухэтажный дом с тремя спальнями 81м² (S54)
Двухэтажный дом с тремя спальнями 130м² (S69)
Двухэтажный дом с тремя спальнями 119м² (S70)
Двухэтажный дом с тремя спальнями 142м² (S92)
Двухэтажный дом с тремя спальнями 109м² (S105)
Сравнить
0