Двухэтажный дом с пятью спальнями 131м² (S104)

Артикул: S104
Артикул: S104
Двухэтажный дом с пятью спальнями 131м² (S104)
СТОИМОСТЬ УТОЧНЯЙТЕ ПО ТЕЛЕФОНУ 8(8452)77-80-80

Стоимость строительства дома по данному проекту указана справочно и зависит от комплектации, технических условий и актуальных цен на стройматериалы! Консультация по проекту по телефону (8452) 77-80-80.


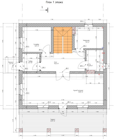
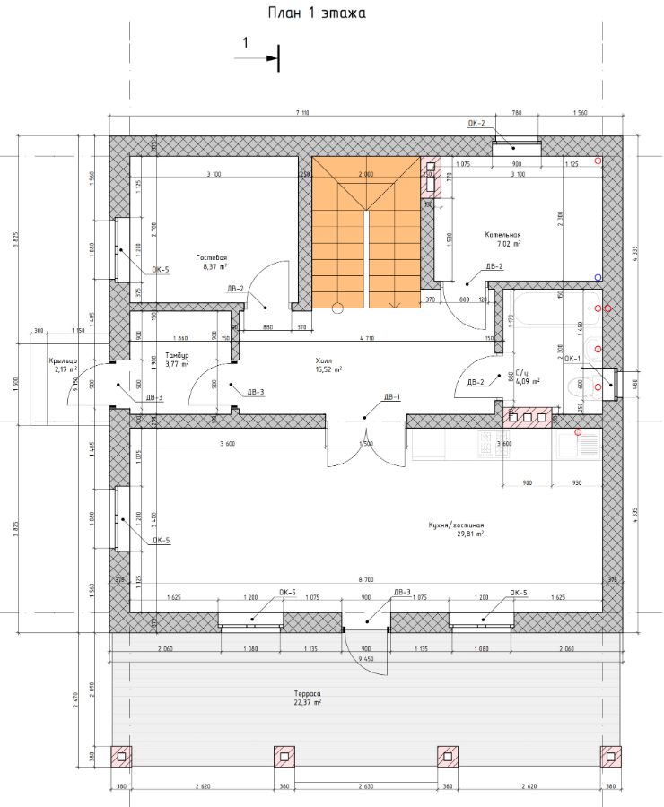
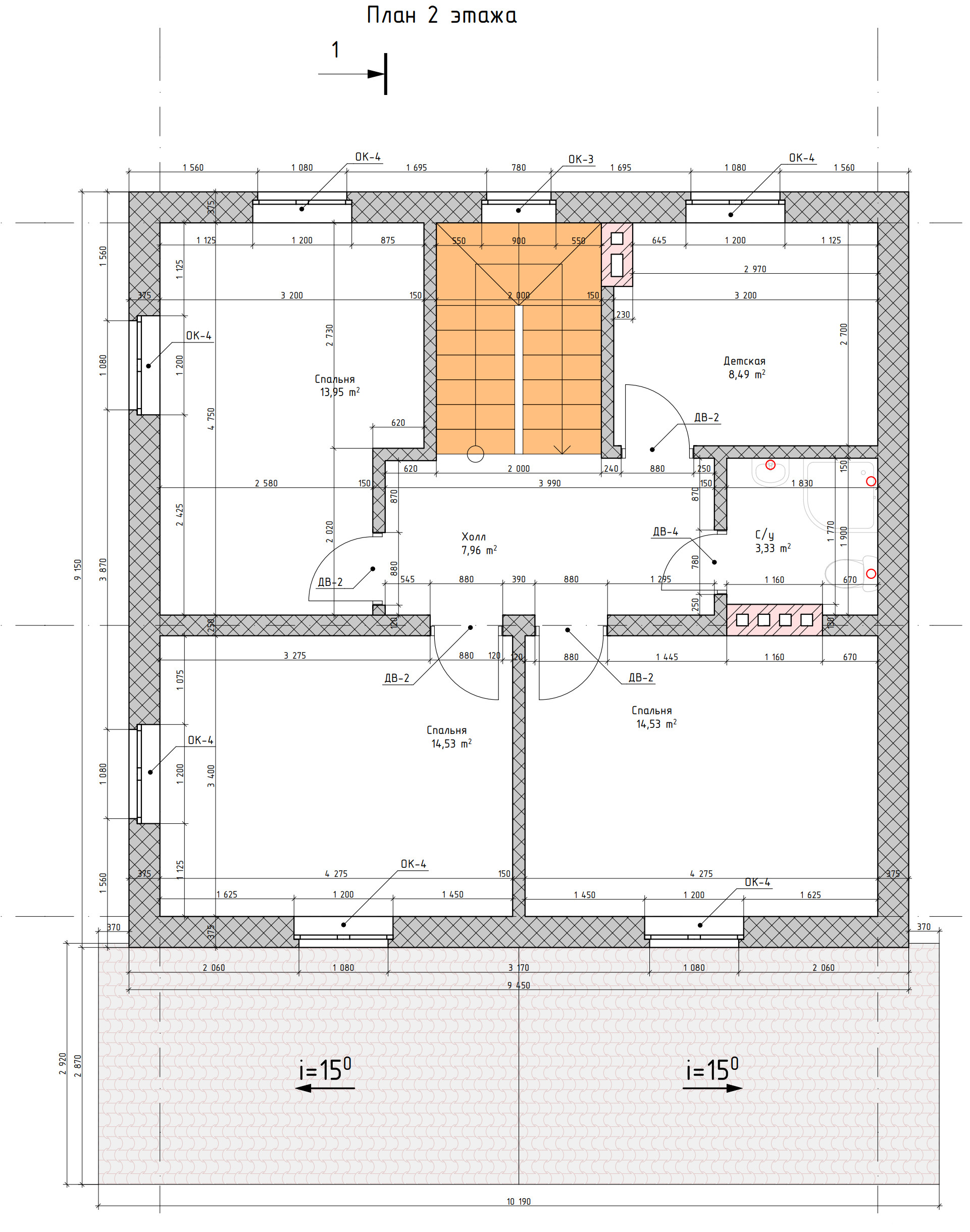
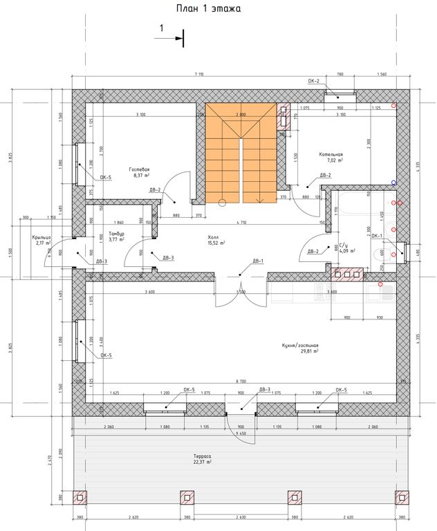
Готовый проект двухэтажного дома общей площадью 131,39 м². Стены дома могут быть выполнены из газосиликатных блоков или силикатного кирпича. По плану в доме тамбур (3.77 м²), холл (15.52 м²), котельная (7.02 м²), два санузла (4.09 м², 3.33 м²), кухня-гостиная (29.81 м²), пять спален (8.37 м², 8.49 м², 13.95 м², 14.53 м², 14.53 м²) и терраса (22.37 м²).


Общие технические характеристики дома
  • Внешняя площадь здания 203 м²
  • Общая площадь: 131,39 м²
  • Площадь балконов и террас: 24,54 м²
  • Угол наклона кровли: 30°
  • Площадь кровли: 117,30 м²
  • Площадь крыши террасы: 30,32 м²

Стоимость строительства дома по данному проекту указана справочно и зависит от комплектации, технических условий и актуальных цен на стройматериалы! Консультация по проекту по телефону (8452) 77-80-80.


Готовый проект двухэтажного дома общей площадью 131,39 м². Стены дома могут быть выполнены из газосиликатных блоков или силикатного кирпича. По плану в доме тамбур (3.77 м²), холл (15.52 м²), котельная (7.02 м²), два санузла (4.09 м², 3.33 м²), кухня-гостиная (29.81 м²), пять спален (8.37 м², 8.49 м², 13.95 м², 14.53 м², 14.53 м²) и терраса (22.37 м²).


Общие технические характеристики дома
  • Внешняя площадь здания 203 м²
  • Общая площадь: 131,39 м²
  • Площадь балконов и террас: 24,54 м²
  • Угол наклона кровли: 30°
  • Площадь кровли: 117,30 м²
  • Площадь крыши террасы: 30,32 м²

Похожие проекты домов

Двухэтажный дом с пятью спальнями и цокольным этажом 306м² (S13)
Двухэтажный дом с четырьмя спальнями 144м² (S21)
Двухэтажный дом с пятью спальнями 133м² (S59)
Одноэтажный дом с пятью спальнями 125м² (S11)
Двухэтажный дом с тремя спальнями 142м² (S92)
Сравнить
0