Одноэтажный дом с двумя спальнями 110м² (S103)

Артикул: S103
Одноэтажный дом с двумя спальнями 110м² (S103)

Стоимость строительства дома по данному проекту указана справочно и зависит от комплектации, технических условий и актуальных цен на строительные материалы! Получить консультацию по проекту можно по телефону (8452) 77-80-80


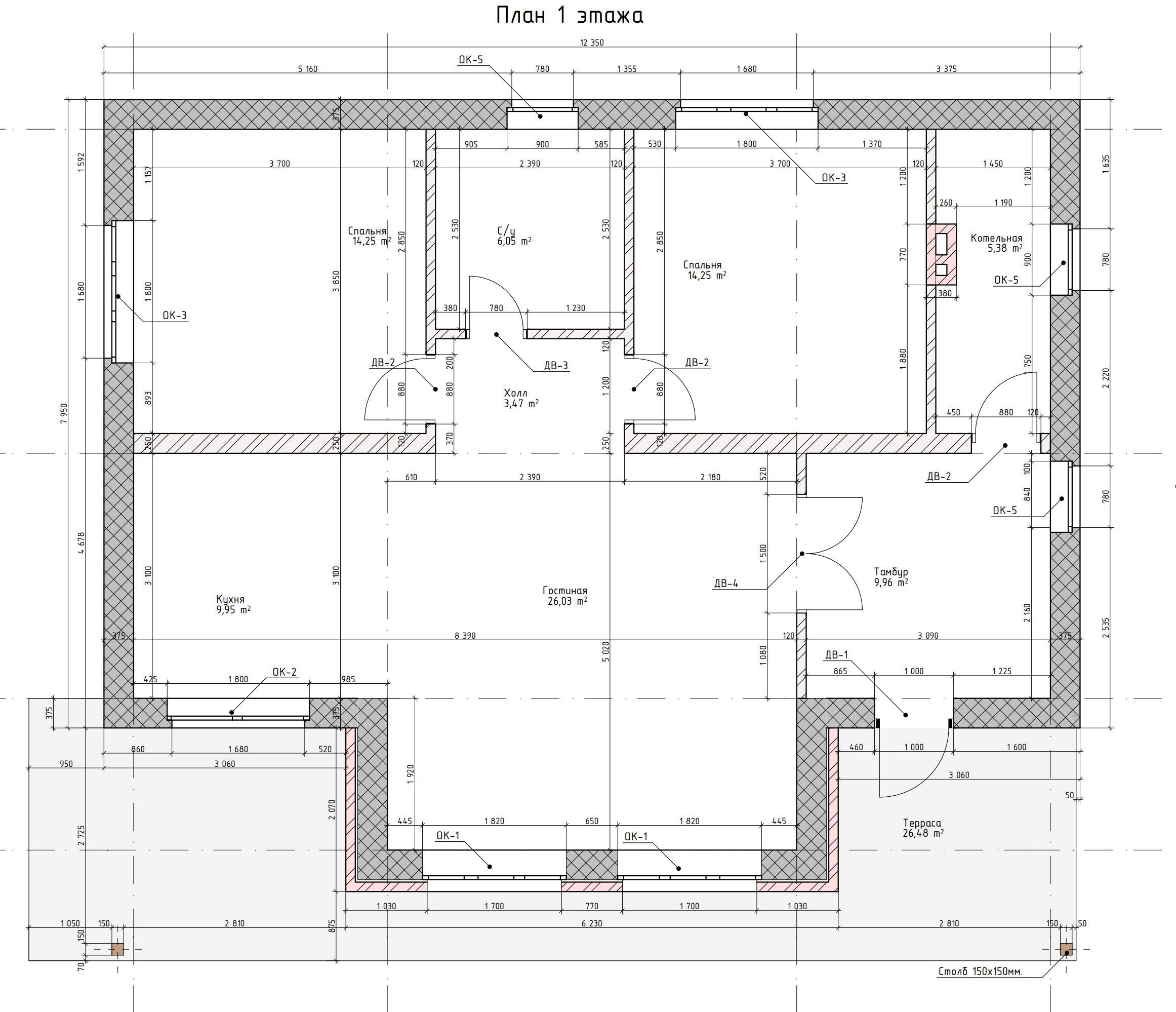
Готовый проект одноэтажного дома общей площадью 94 м². Стены дома могут быть выполнены из газосиликатных блоков или силикатного кирпича. По плану в доме тамбур (9.96 м²), холл (3.47 м²), котельная (5.38 м²), санузел (6.05 м²), кухня (9.95 м²), гостиная (26.03 м²), две спальни (14.25 м², 14.25 м²) и терраса (26.48 м²).


Общие технические характеристики дома
  • Внешняя площадь здания 111 м²
  • Жилая (общая) площадь 94 м²
  • Высота этажа: 3 м
  • Угол наклона кровли: 30°
  • Площадь крыши дома: 195,60 м²
СТОИМОСТЬ УТОЧНЯЙТЕ ПО ТЕЛЕФОНУ 8(8452)77-80-80

Стоимость строительства дома по данному проекту указана справочно и зависит от комплектации, технических условий и актуальных цен на строительные материалы! Получить консультацию по проекту можно по телефону (8452) 77-80-80


Готовый проект одноэтажного дома общей площадью 94 м². Стены дома могут быть выполнены из газосиликатных блоков или силикатного кирпича. По плану в доме тамбур (9.96 м²), холл (3.47 м²), котельная (5.38 м²), санузел (6.05 м²), кухня (9.95 м²), гостиная (26.03 м²), две спальни (14.25 м², 14.25 м²) и терраса (26.48 м²).


Общие технические характеристики дома
  • Внешняя площадь здания 111 м²
  • Жилая (общая) площадь 94 м²
  • Высота этажа: 3 м
  • Угол наклона кровли: 30°
  • Площадь крыши дома: 195,60 м²
  • Описание

    Проект S103 «Одноэтажный дом 110 м²» разработан профессиональными архитекторами в соответствии с действующими строительными нормами и правилами (СНиП), стандартами (ГОСТ), региональными нормативами. При проектировании дома учтены особенности локального рынка стройматериалов и наш позитивный опыт сотрудничества с поставщиками. Проект отлично подходит для строительства дома «под ключ» в любой точке Саратова, Энгельса и Саратовской области, а также для получения льготной ипотеки на строительство частного дома (в том числе с использованием маткапитала). 


    Варианты комплектации дома


    «Дача»


    Фундамент
    — Монолитная плита с ребрами жесткости.
    — Высота цоколя 30 см.


    Стены дома
    — Стены дома из газосиликатных блоков (250 мм).
    — Межкомнатные перегородки из газосиликатных блоков (100 мм).


    Кровля
    — Материал покрытия — металлочерепица «Монтеррей»
    — Потолок верхнего этажа утепленный (утеплитель — минеральная вата 200 мм).
    — Черновой подшив потолка.



    «Коттедж»


    Фундамент
    — Монолитная плита с ребрами жесткости.
    — Высота цоколя 30 см.


    Стены дома
    — Стены дома из газосиликатных блоков (300 мм или выше в зависимости от необходимой плотности блока).
    — Межкомнатные перегородки из газосиликатных блоков (100 мм).


    Кровля
    — Материал покрытия — металлочерепица «Монтеррей».
    — Подшив карнизов (профлист C8).
    — Потолок верхнего этажа утепленный (утеплитель — минеральная вата 200 мм).
    — Черновой подшив потолка.


    Отделка фасада
    — Отделка фасада декоративной штукатуркой.

    Окна и входная дверь
    — Пластиковые окна без ламинации Rehau (Рехау) или аналог.
    — Хорошая фурнитура.
    — Металлическая входная дверь Torex (Торэкс).



    «Коттедж+»


    Фундамент
    — Монолитная плита без ребер жесткости.
    — Высота цоколя 30 см.


    Стены дома
    — Стены дома из газосиликатных блоков (300 мм или выше в зависимости от необходимой плотности блока).
    — Межкомнатные перегородки из силикатного кирпича (120 мм).


    Кровля
    — Материал покрытия — гибкая черепица.
    — Подшив карнизов (профлист C8).
    — Потолок верхнего этажа утепленный (утеплитель — минеральная вата).
    — Черновой подшив потолка.
    — Снегозадержатели.
    — Водосточная система.


    Отделка фасада
    — Облицовка керамическим кирпичом.


    Окна и входная дверь
    — Пластиковые окна с ламинацией Rehau (Рехау) или аналоги.
    — Хорошая фурнитура.
    — Металлическая входная дверь Torex (Торэкс).



    В зависимости от параметров участка и пожеланий Заказчика возможна адаптация проекта под технические условия, внесение линейных изменений, перепланировка, пристройка веранды, террасы, навеса, гаража и других объектов.


    Получить консультацию по проекту, пригласить специалиста для составления сметы и заказать строительство дома «под ключ» можно по телефону (8452) 77-80-80 или онлайн. Мы обязательно дадим полезные советы и рекомендации, сориентируем по срокам строительства, предложим максимально честные цены на строительные и монтажные работы.

  • Документы

    План 1-го этажа (проект S103)
    540.7 кб, 08 декабря в 14:09
  • Характеристики

    Количество этажей
    есть
    Проект с террасой
    есть
  • Комментарии 0

Проект S103 «Одноэтажный дом 110 м²» разработан профессиональными архитекторами в соответствии с действующими строительными нормами и правилами (СНиП), стандартами (ГОСТ), региональными нормативами. При проектировании дома учтены особенности локального рынка стройматериалов и наш позитивный опыт сотрудничества с поставщиками. Проект отлично подходит для строительства дома «под ключ» в любой точке Саратова, Энгельса и Саратовской области, а также для получения льготной ипотеки на строительство частного дома (в том числе с использованием маткапитала). 


Варианты комплектации дома


«Дача»


Фундамент
— Монолитная плита с ребрами жесткости.
— Высота цоколя 30 см.


Стены дома
— Стены дома из газосиликатных блоков (250 мм).
— Межкомнатные перегородки из газосиликатных блоков (100 мм).


Кровля
— Материал покрытия — металлочерепица «Монтеррей»
— Потолок верхнего этажа утепленный (утеплитель — минеральная вата 200 мм).
— Черновой подшив потолка.



«Коттедж»


Фундамент
— Монолитная плита с ребрами жесткости.
— Высота цоколя 30 см.


Стены дома
— Стены дома из газосиликатных блоков (300 мм или выше в зависимости от необходимой плотности блока).
— Межкомнатные перегородки из газосиликатных блоков (100 мм).


Кровля
— Материал покрытия — металлочерепица «Монтеррей».
— Подшив карнизов (профлист C8).
— Потолок верхнего этажа утепленный (утеплитель — минеральная вата 200 мм).
— Черновой подшив потолка.


Отделка фасада
— Отделка фасада декоративной штукатуркой.

Окна и входная дверь
— Пластиковые окна без ламинации Rehau (Рехау) или аналог.
— Хорошая фурнитура.
— Металлическая входная дверь Torex (Торэкс).



«Коттедж+»


Фундамент
— Монолитная плита без ребер жесткости.
— Высота цоколя 30 см.


Стены дома
— Стены дома из газосиликатных блоков (300 мм или выше в зависимости от необходимой плотности блока).
— Межкомнатные перегородки из силикатного кирпича (120 мм).


Кровля
— Материал покрытия — гибкая черепица.
— Подшив карнизов (профлист C8).
— Потолок верхнего этажа утепленный (утеплитель — минеральная вата).
— Черновой подшив потолка.
— Снегозадержатели.
— Водосточная система.


Отделка фасада
— Облицовка керамическим кирпичом.


Окна и входная дверь
— Пластиковые окна с ламинацией Rehau (Рехау) или аналоги.
— Хорошая фурнитура.
— Металлическая входная дверь Torex (Торэкс).



В зависимости от параметров участка и пожеланий Заказчика возможна адаптация проекта под технические условия, внесение линейных изменений, перепланировка, пристройка веранды, террасы, навеса, гаража и других объектов.


Получить консультацию по проекту, пригласить специалиста для составления сметы и заказать строительство дома «под ключ» можно по телефону (8452) 77-80-80 или онлайн. Мы обязательно дадим полезные советы и рекомендации, сориентируем по срокам строительства, предложим максимально честные цены на строительные и монтажные работы.

План 1-го этажа (проект S103)
540.7 кб, 08 декабря в 14:09
Количество этажей
есть
Проект с террасой
есть

Удалить товар

Вы точно хотите удалить выбранный товар? Отменить данное действие будет невозможно.

Похожие проекты домов

Одноэтажный дом с двумя спальнями 106.45м² + парковка с навесом 42.45 м²(S47)
Одноэтажный дом с двумя спальнями 102м² (S49)
Одноэтажный дом с двумя спальнями 89м² (S19)
Одноэтажный дом с двумя спальнями 91.16 м² (S37)
Одноэтажный дом с двумя спальнями 83.13 м² (S46)
Одноэтажный дом с двумя спальнями 63.39 м² + терраса  14.03 м²(S48)
Одноэтажный дом с двумя спальнями 93м² (S60)
Одноэтажный дом с тремя спальнями 83м² (S61)
Сравнить
0

Удалить товар

Вы точно хотите удалить выбранный товар? Отменить данное действие будет невозможно.