Одноэтажный дом с тремя спальнями 102м² (S102)

Артикул: S102
Артикул: S102
Одноэтажный дом с тремя спальнями 102м² (S102)
СТОИМОСТЬ УТОЧНЯЙТЕ ПО ТЕЛЕФОНУ 8(8452)77-80-80

Стоимость строительства дома по данному проекту указана справочно и зависит от комплектации, технических условий и актуальных цен на строительные материалы! Получить консультацию по проекту можно по телефону (8452) 77-80-80.


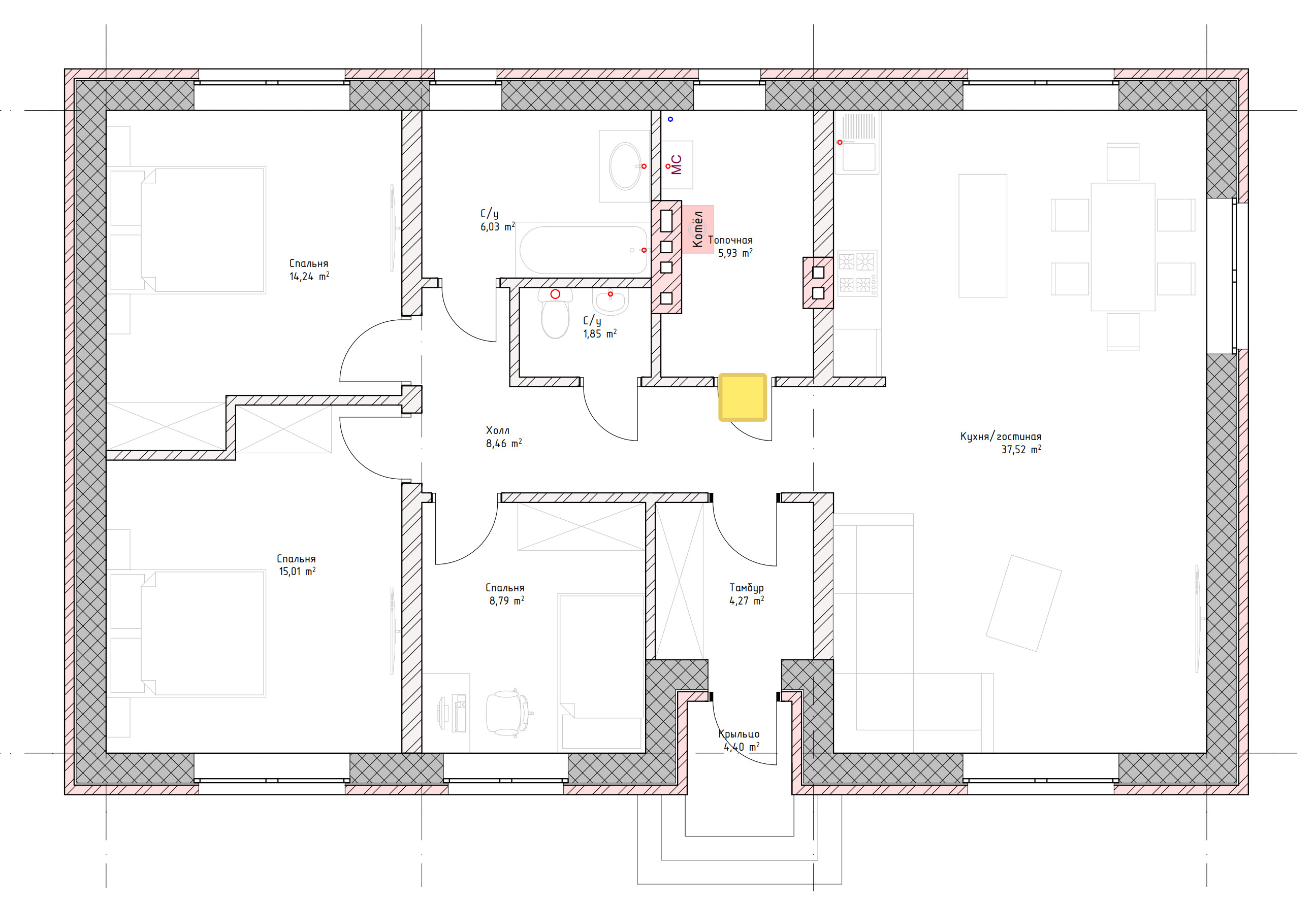
Готовый проект одноэтажного дома общей площадью 102,10 м². Стены дома могут быть выполнены из газосиликатных блоков или силикатного кирпича. По плану в доме тамбур (4.27 м²), холл (8.46 м²), топочная (5.93 м²), два санузла (1.85 м², 6.03 м²), просторная объединенная кухня-гостиная (37.52 м²), три спальни (8.79 м², 14.24 м², 15.01 м²).


Общие технические характеристики дома
  • Внешняя площадь здания 117 м²
  • Жилая (общая) площадь: 102,10 м²
  • Угол наклона кровли: 30°
  • Площадь крыши дома: 184,70 м²

Стоимость строительства дома по данному проекту указана справочно и зависит от комплектации, технических условий и актуальных цен на строительные материалы! Получить консультацию по проекту можно по телефону (8452) 77-80-80.


Готовый проект одноэтажного дома общей площадью 102,10 м². Стены дома могут быть выполнены из газосиликатных блоков или силикатного кирпича. По плану в доме тамбур (4.27 м²), холл (8.46 м²), топочная (5.93 м²), два санузла (1.85 м², 6.03 м²), просторная объединенная кухня-гостиная (37.52 м²), три спальни (8.79 м², 14.24 м², 15.01 м²).


Общие технические характеристики дома
  • Внешняя площадь здания 117 м²
  • Жилая (общая) площадь: 102,10 м²
  • Угол наклона кровли: 30°
  • Площадь крыши дома: 184,70 м²

Похожие проекты домов

Одноэтажный дом с тремя спальнями 101м² (S15)
Одноэтажный дом с тремя спальнями 105м² (S16)
Одноэтажный дом с тремя спальнями 112м² (S30)
Одноэтажный дом с тремя спальнями 103м² (S29)
Одноэтажный дом с тремя спальнями 105м² (S82)
Одноэтажный дом с тремя спальнями 105м² (S86)
Одноэтажный дом с тремя спальнями 95м² (S88)
Одноэтажный дом с тремя спальнями 99м² (S87)
Сравнить
0