Одноэтажный дом с тремя спальнями 99м² (S87)

Артикул: S87
Одноэтажный дом с тремя спальнями 99м² (S87)

Стоимость строительства дома по данному проекту указана справочно и зависит от комплектации, технических условий и актуальных цен на стройматериалы! Консультация по проекту по телефону (8452) 77-80-80.


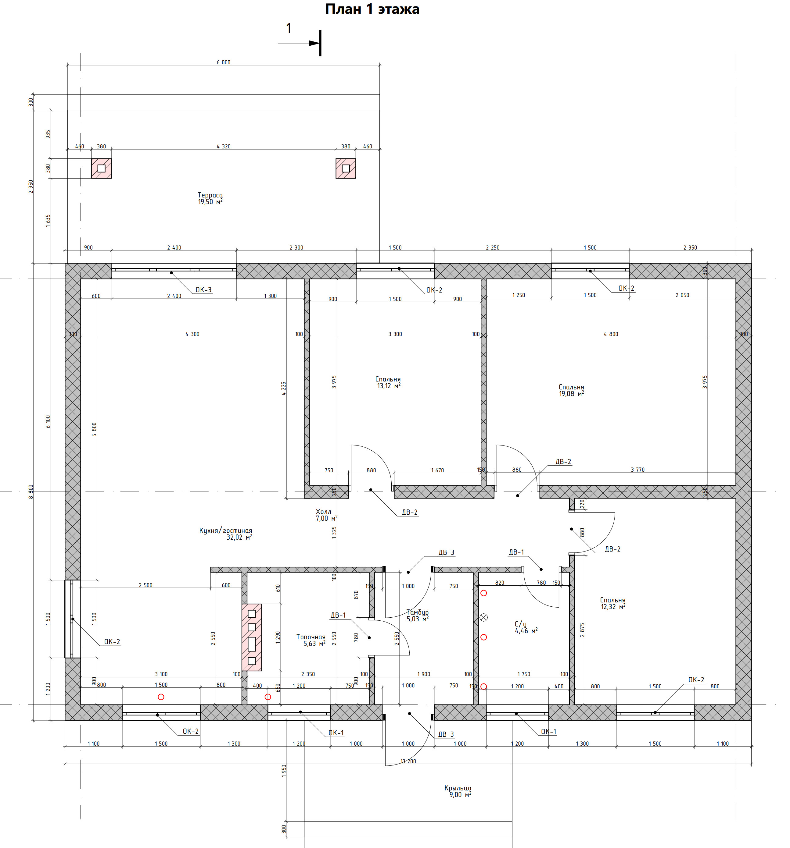
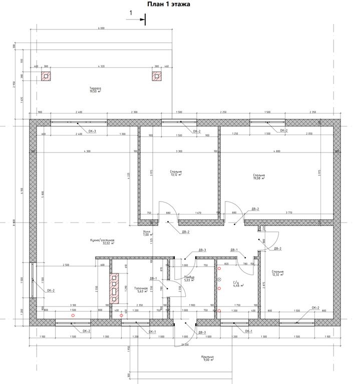
Готовый проект одноэтажного дома общей площадью 98,66 м². Стены дома могут быть выполнены из газосиликатных блоков или силикатного кирпича. По плану в доме холл (7,00 м²), топочная (5,63 м²), просторная кухня-гостиная (32,02 м²), санузел (4,46 м²), 3 спальни (12,32 м², 13,12 м², 19,08 м²) и терраса (19,50 м²).


Общие технические характеристики дома
  • Внешняя площадь здания 135 м²
  • Общая площадь: 98,66 м²
  • Площадь крыльца и террасы: 28,50 м²
  • Высота 1-го этажа: 3 м
  • Угол наклона кровли: 3
  • Площадь кровли: 171,10 м²
СТОИМОСТЬ УТОЧНЯЙТЕ ПО ТЕЛЕФОНУ 8(8452)77-80-80

Стоимость строительства дома по данному проекту указана справочно и зависит от комплектации, технических условий и актуальных цен на стройматериалы! Консультация по проекту по телефону (8452) 77-80-80.


Готовый проект одноэтажного дома общей площадью 98,66 м². Стены дома могут быть выполнены из газосиликатных блоков или силикатного кирпича. По плану в доме холл (7,00 м²), топочная (5,63 м²), просторная кухня-гостиная (32,02 м²), санузел (4,46 м²), 3 спальни (12,32 м², 13,12 м², 19,08 м²) и терраса (19,50 м²).


Общие технические характеристики дома
  • Внешняя площадь здания 135 м²
  • Общая площадь: 98,66 м²
  • Площадь крыльца и террасы: 28,50 м²
  • Высота 1-го этажа: 3 м
  • Угол наклона кровли: 3
  • Площадь кровли: 171,10 м²
  • Описание

    Проект S87 «Одноэтажный дом 99 м²» разработан профессиональными архитекторами в соответствии с действующими строительными нормами и правилами (СНиП), стандартами (ГОСТ), региональными нормативами. При проектировании дома учтены особенности локального рынка стройматериалов и наш позитивный опыт сотрудничества с поставщиками. Проект отлично подходит для строительства дома «под ключ» в любой точке Саратова, Энгельса и Саратовской области, а также для получения льготной ипотеки на строительство частного дома (в том числе с использованием маткапитала).


    Варианты комплектации дома


    «Дача»


    Фундамент
    — Монолитная плита с ребрами жесткости.
    — Высота цоколя 30 см.


    Стены дома
    — Стены дома из газосиликатных блоков (250 мм).
    — Межкомнатные перегородки из газосиликатных блоков (100 мм).


    Кровля
    — Материал покрытия — металлочерепица «Монтеррей»
    — Потолок верхнего этажа утепленный (утеплитель — минеральная вата 200 мм).
    — Черновой подшив потолка.



    «Коттедж»


    Фундамент
    — Монолитная плита с ребрами жесткости.
    — Высота цоколя 30 см.


    Стены дома
    — Стены дома из газосиликатных блоков (300 мм или выше в зависимости от необходимой плотности блока).
    — Межкомнатные перегородки из газосиликатных блоков (100 мм).


    Кровля
    — Материал покрытия — металлочерепица «Монтеррей».
    — Подшив карнизов (профлист C8).
    — Потолок верхнего этажа утепленный (утеплитель — минеральная вата 200 мм).
    — Черновой подшив потолка.


    Отделка фасада
    — Отделка фасада декоративной штукатуркой.

    Окна и входная дверь
    — Пластиковые окна без ламинации Rehau (Рехау) или аналог.
    — Хорошая фурнитура.
    — Металлическая входная дверь Torex (Торэкс).



    «Коттедж+»


    Фундамент
    — Монолитная плита без ребер жесткости.
    — Высота цоколя 30 см.


    Стены дома
    — Стены дома из газосиликатных блоков (300 мм или выше в зависимости от необходимой плотности блока).
    — Межкомнатные перегородки из силикатного кирпича (120 мм).


    Кровля
    — Материал покрытия — гибкая черепица.
    — Подшив карнизов (профлист C8).
    — Потолок верхнего этажа утепленный (утеплитель — минеральная вата).
    — Черновой подшив потолка.
    — Снегозадержатели.
    — Водосточная система.


    Отделка фасада
    — Облицовка керамическим кирпичом.


    Окна и входная дверь
    — Пластиковые окна с ламинацией Rehau (Рехау) или аналоги.
    — Хорошая фурнитура.
    — Металлическая входная дверь Torex (Торэкс).



    В зависимости от параметров участка и пожеланий Заказчика возможна адаптация проекта под технические условия, внесение линейных изменений, перепланировка, пристройка веранды, террасы, навеса, гаража и других объектов.


    Получить консультацию по проекту, пригласить специалиста для составления сметы и заказать строительство дома «под ключ» можно по телефону (8452) 77-80-80 или онлайн. Мы обязательно дадим полезные советы и рекомендации, сориентируем по срокам строительства, предложим максимально честные цены на строительные и монтажные работы.

  • Документы

    План 1-го этажа (проект S87)
    580.1 кб, 18 сентября в 17:01
  • Характеристики

    Количество этажей
    есть
    Проект с террасой
    есть
  • Комментарии 0

Проект S87 «Одноэтажный дом 99 м²» разработан профессиональными архитекторами в соответствии с действующими строительными нормами и правилами (СНиП), стандартами (ГОСТ), региональными нормативами. При проектировании дома учтены особенности локального рынка стройматериалов и наш позитивный опыт сотрудничества с поставщиками. Проект отлично подходит для строительства дома «под ключ» в любой точке Саратова, Энгельса и Саратовской области, а также для получения льготной ипотеки на строительство частного дома (в том числе с использованием маткапитала).


Варианты комплектации дома


«Дача»


Фундамент
— Монолитная плита с ребрами жесткости.
— Высота цоколя 30 см.


Стены дома
— Стены дома из газосиликатных блоков (250 мм).
— Межкомнатные перегородки из газосиликатных блоков (100 мм).


Кровля
— Материал покрытия — металлочерепица «Монтеррей»
— Потолок верхнего этажа утепленный (утеплитель — минеральная вата 200 мм).
— Черновой подшив потолка.



«Коттедж»


Фундамент
— Монолитная плита с ребрами жесткости.
— Высота цоколя 30 см.


Стены дома
— Стены дома из газосиликатных блоков (300 мм или выше в зависимости от необходимой плотности блока).
— Межкомнатные перегородки из газосиликатных блоков (100 мм).


Кровля
— Материал покрытия — металлочерепица «Монтеррей».
— Подшив карнизов (профлист C8).
— Потолок верхнего этажа утепленный (утеплитель — минеральная вата 200 мм).
— Черновой подшив потолка.


Отделка фасада
— Отделка фасада декоративной штукатуркой.

Окна и входная дверь
— Пластиковые окна без ламинации Rehau (Рехау) или аналог.
— Хорошая фурнитура.
— Металлическая входная дверь Torex (Торэкс).



«Коттедж+»


Фундамент
— Монолитная плита без ребер жесткости.
— Высота цоколя 30 см.


Стены дома
— Стены дома из газосиликатных блоков (300 мм или выше в зависимости от необходимой плотности блока).
— Межкомнатные перегородки из силикатного кирпича (120 мм).


Кровля
— Материал покрытия — гибкая черепица.
— Подшив карнизов (профлист C8).
— Потолок верхнего этажа утепленный (утеплитель — минеральная вата).
— Черновой подшив потолка.
— Снегозадержатели.
— Водосточная система.


Отделка фасада
— Облицовка керамическим кирпичом.


Окна и входная дверь
— Пластиковые окна с ламинацией Rehau (Рехау) или аналоги.
— Хорошая фурнитура.
— Металлическая входная дверь Torex (Торэкс).



В зависимости от параметров участка и пожеланий Заказчика возможна адаптация проекта под технические условия, внесение линейных изменений, перепланировка, пристройка веранды, террасы, навеса, гаража и других объектов.


Получить консультацию по проекту, пригласить специалиста для составления сметы и заказать строительство дома «под ключ» можно по телефону (8452) 77-80-80 или онлайн. Мы обязательно дадим полезные советы и рекомендации, сориентируем по срокам строительства, предложим максимально честные цены на строительные и монтажные работы.

План 1-го этажа (проект S87)
580.1 кб, 18 сентября в 17:01
Количество этажей
есть
Проект с террасой
есть

Удалить товар

Вы точно хотите удалить выбранный товар? Отменить данное действие будет невозможно.

Похожие проекты домов

Одноэтажный дом с тремя спальнями 105м² (S86)
Одноэтажный дом с тремя спальнями 105м² (S82)
Одноэтажный дом с тремя спальнями 89м² (S68)
Одноэтажный дом с тремя спальнями 126м² (S65)
Одноэтажный дом с тремя спальнями 94м² (S64)
Одноэтажный дом с тремя спальнями 83м² (S63)
Одноэтажный дом с тремя спальнями 142м² (S42)
Сравнить
0

Удалить товар

Вы точно хотите удалить выбранный товар? Отменить данное действие будет невозможно.