Одноэтажная баня с одной спальней 59м² (S93)

Артикул: S93
Одноэтажная баня с одной спальней 59м² (S93)

Стоимость строительства дома по данному проекту указана справочно и зависит от комплектации, технических условий и актуальных цен на строительные материалы! Получить консультацию по проекту можно по телефону (8452) 77-80-80.



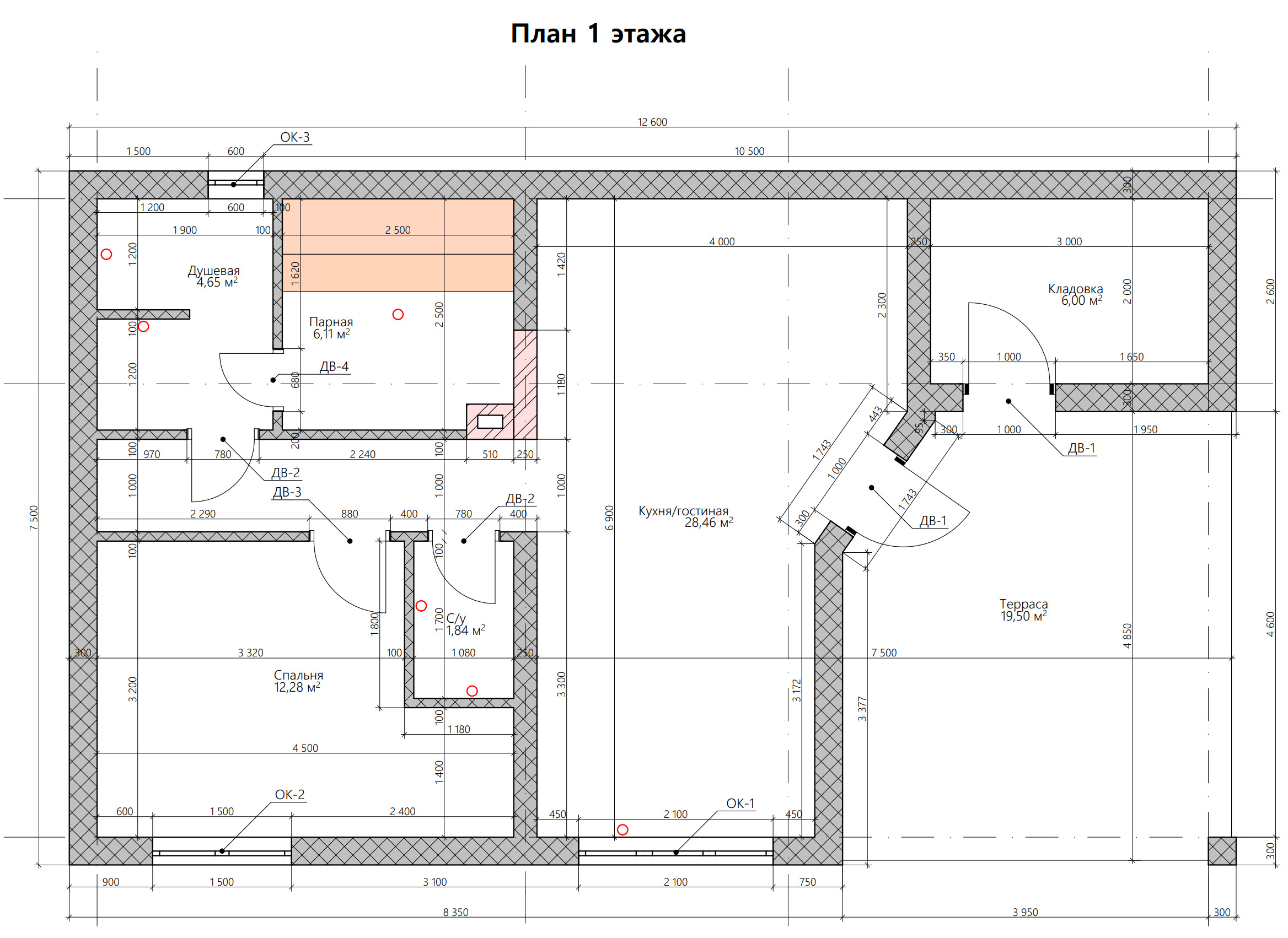
Готовый проект одноэтажной бани общей площадью 59,34 м². Стены дома могут быть выполнены из газосиликатных блоков или силикатного кирпича. По плану в доме кладовка (6,00 м²), просторная кухня-гостиная (28,46 м²), душевая (4,65 м²), парная (6,11 м²), санузел (1,84 м²), спальня (12,28 м²) и терраса (19,50 м²).


Общие технические характеристики дома


  • Внешняя площадь здания 95 м²
  • Общая площадь: 59,34 м²
  • Площадь террасы: 19,50 м²
  • Угол наклона кровли: 30°
  • Площадь крыши дома: 125,38 м²


СТОИМОСТЬ УТОЧНЯЙТЕ ПО ТЕЛЕФОНУ 8(8452)77-80-80

Стоимость строительства дома по данному проекту указана справочно и зависит от комплектации, технических условий и актуальных цен на строительные материалы! Получить консультацию по проекту можно по телефону (8452) 77-80-80.



Готовый проект одноэтажной бани общей площадью 59,34 м². Стены дома могут быть выполнены из газосиликатных блоков или силикатного кирпича. По плану в доме кладовка (6,00 м²), просторная кухня-гостиная (28,46 м²), душевая (4,65 м²), парная (6,11 м²), санузел (1,84 м²), спальня (12,28 м²) и терраса (19,50 м²).


Общие технические характеристики дома


  • Внешняя площадь здания 95 м²
  • Общая площадь: 59,34 м²
  • Площадь террасы: 19,50 м²
  • Угол наклона кровли: 30°
  • Площадь крыши дома: 125,38 м²


  • Описание

    Проект S93 «Одноэтажная баня 59 м²» разработан профессиональными архитекторами в соответствии с действующими строительными нормами и правилами (СНиП), стандартами (ГОСТ), региональными нормативами. При проектировании дома учтены особенности локального рынка стройматериалов и наш позитивный опыт сотрудничества с поставщиками. Проект отлично подходит для строительства дома «под ключ» в любой точке Саратова, Энгельса и Саратовской области, а также для получения льготной ипотеки на строительство частного дома (в том числе с использованием маткапитала). 


    Варианты комплектации дома


    «Дача»


    Фундамент
    — Монолитная плита с ребрами жесткости.
    — Высота цоколя 30 см.


    Стены дома
    — Стены дома из газосиликатных блоков (250 мм).
    — Межкомнатные перегородки из газосиликатных блоков (100 мм).


    Кровля
    — Материал покрытия — металлочерепица «Монтеррей»
    — Потолок верхнего этажа утепленный (утеплитель — минеральная вата 200 мм).
    — Черновой подшив потолка.



    «Коттедж»


    Фундамент
    — Монолитная плита с ребрами жесткости.
    — Высота цоколя 30 см.


    Стены дома
    — Стены дома из газосиликатных блоков (300 мм или выше в зависимости от необходимой плотности блока).
    — Межкомнатные перегородки из газосиликатных блоков (100 мм).


    Кровля
    — Материал покрытия — металлочерепица «Монтеррей».
    — Подшив карнизов (профлист C8).
    — Потолок верхнего этажа утепленный (утеплитель — минеральная вата 200 мм).
    — Черновой подшив потолка.


    Отделка фасада
    — Отделка фасада декоративной штукатуркой.

    Окна и входная дверь
    — Пластиковые окна без ламинации Rehau (Рехау) или аналог.
    — Хорошая фурнитура.
    — Металлическая входная дверь Torex (Торэкс).



    «Коттедж+»


    Фундамент
    — Монолитная плита без ребер жесткости.
    — Высота цоколя 30 см.


    Стены дома
    — Стены дома из газосиликатных блоков (300 мм или выше в зависимости от необходимой плотности блока).
    — Межкомнатные перегородки из силикатного кирпича (120 мм).


    Кровля
    — Материал покрытия — гибкая черепица.
    — Подшив карнизов (профлист C8).
    — Потолок верхнего этажа утепленный (утеплитель — минеральная вата).
    — Черновой подшив потолка.
    — Снегозадержатели.
    — Водосточная система.


    Отделка фасада
    — Облицовка керамическим кирпичом.


    Окна и входная дверь
    — Пластиковые окна с ламинацией Rehau (Рехау) или аналоги.
    — Хорошая фурнитура.
    — Металлическая входная дверь Torex (Торэкс).



    В зависимости от параметров участка и пожеланий Заказчика возможна адаптация проекта под технические условия, внесение линейных изменений, перепланировка, пристройка веранды, террасы, навеса, гаража и других объектов.


    Получить консультацию по проекту, пригласить специалиста для составления сметы и заказать строительство дома «под ключ» можно по телефону (8452) 77-80-80 или онлайн. Мы обязательно дадим полезные советы и рекомендации, сориентируем по срокам строительства, предложим максимально честные цены на строительные и монтажные работы.

  • Документы

    План 1-го этажа (проект S93)
    481.4 кб, 07 декабря в 12:48
  • Характеристики

    Количество спален в доме
    есть
    Количество этажей
    есть
    Проект с террасой
    есть
    Проект бани
    есть
  • Комментарии 0

Проект S93 «Одноэтажная баня 59 м²» разработан профессиональными архитекторами в соответствии с действующими строительными нормами и правилами (СНиП), стандартами (ГОСТ), региональными нормативами. При проектировании дома учтены особенности локального рынка стройматериалов и наш позитивный опыт сотрудничества с поставщиками. Проект отлично подходит для строительства дома «под ключ» в любой точке Саратова, Энгельса и Саратовской области, а также для получения льготной ипотеки на строительство частного дома (в том числе с использованием маткапитала). 


Варианты комплектации дома


«Дача»


Фундамент
— Монолитная плита с ребрами жесткости.
— Высота цоколя 30 см.


Стены дома
— Стены дома из газосиликатных блоков (250 мм).
— Межкомнатные перегородки из газосиликатных блоков (100 мм).


Кровля
— Материал покрытия — металлочерепица «Монтеррей»
— Потолок верхнего этажа утепленный (утеплитель — минеральная вата 200 мм).
— Черновой подшив потолка.



«Коттедж»


Фундамент
— Монолитная плита с ребрами жесткости.
— Высота цоколя 30 см.


Стены дома
— Стены дома из газосиликатных блоков (300 мм или выше в зависимости от необходимой плотности блока).
— Межкомнатные перегородки из газосиликатных блоков (100 мм).


Кровля
— Материал покрытия — металлочерепица «Монтеррей».
— Подшив карнизов (профлист C8).
— Потолок верхнего этажа утепленный (утеплитель — минеральная вата 200 мм).
— Черновой подшив потолка.


Отделка фасада
— Отделка фасада декоративной штукатуркой.

Окна и входная дверь
— Пластиковые окна без ламинации Rehau (Рехау) или аналог.
— Хорошая фурнитура.
— Металлическая входная дверь Torex (Торэкс).



«Коттедж+»


Фундамент
— Монолитная плита без ребер жесткости.
— Высота цоколя 30 см.


Стены дома
— Стены дома из газосиликатных блоков (300 мм или выше в зависимости от необходимой плотности блока).
— Межкомнатные перегородки из силикатного кирпича (120 мм).


Кровля
— Материал покрытия — гибкая черепица.
— Подшив карнизов (профлист C8).
— Потолок верхнего этажа утепленный (утеплитель — минеральная вата).
— Черновой подшив потолка.
— Снегозадержатели.
— Водосточная система.


Отделка фасада
— Облицовка керамическим кирпичом.


Окна и входная дверь
— Пластиковые окна с ламинацией Rehau (Рехау) или аналоги.
— Хорошая фурнитура.
— Металлическая входная дверь Torex (Торэкс).



В зависимости от параметров участка и пожеланий Заказчика возможна адаптация проекта под технические условия, внесение линейных изменений, перепланировка, пристройка веранды, террасы, навеса, гаража и других объектов.


Получить консультацию по проекту, пригласить специалиста для составления сметы и заказать строительство дома «под ключ» можно по телефону (8452) 77-80-80 или онлайн. Мы обязательно дадим полезные советы и рекомендации, сориентируем по срокам строительства, предложим максимально честные цены на строительные и монтажные работы.

План 1-го этажа (проект S93)
481.4 кб, 07 декабря в 12:48
Количество спален в доме
есть
Количество этажей
есть
Проект с террасой
есть
Проект бани
есть

Удалить товар

Вы точно хотите удалить выбранный товар? Отменить данное действие будет невозможно.

Похожие проекты домов

Одноэтажный дом с тремя спальнями 94.69м² + крыльцо 4.79м2 (S1)
Одноэтажная каркасная баня с одной спальней 52м² (SK18)
Одноэтажная каркасная баня с одной спальней 35м² (SK25)
Одноэтажная каркасная баня 50м² (SK28)
Одноэтажная каркасная баня 25м² (SK30)
Каркасная баня 31м² (SK53)
Одноэтажная баня с одной спальней 30м² (S98)
Каркасная баня 35м² (SK79)
Сравнить
0

Удалить товар

Вы точно хотите удалить выбранный товар? Отменить данное действие будет невозможно.