Одноэтажная баня с одной спальней 30м² (S98)

Артикул: S98
Артикул: S98
Одноэтажная баня с одной спальней 30м² (S98)
СТОИМОСТЬ УТОЧНЯЙТЕ ПО ТЕЛЕФОНУ 8(8452)77-80-80

Стоимость строительства дома по данному проекту указана справочно и зависит от комплектации, технических условий и актуальных цен на строительные материалы! Получить консультацию по проекту можно по телефону (8452) 77-80-80.


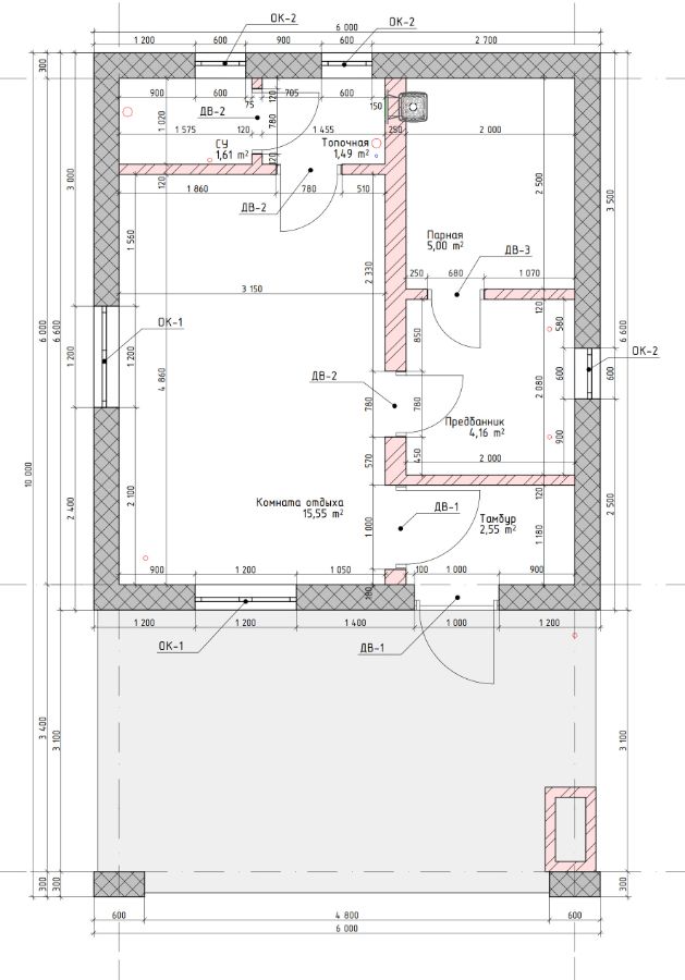
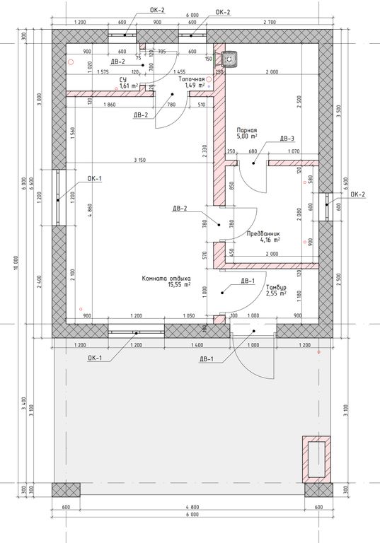
Готовый проект одноэтажной бани общей площадью 30,36 м². Стены дома могут быть выполнены из газосиликатных блоков или силикатного кирпича. По плану в доме тамбур (2,55 м²), предбанник (4,16 м²), парная (5,00 м²), топочная (1,49 м²), санузел (1,61 м²), комната отдыха (15,55 м²) и терраса.


Общие технические характеристики дома
  • Внешняя площадь здания 60 м²
  • Общая площадь: 30,36 м²
  • Угол наклона кровли: 30°
  • Площадь крыши дома: 88,98 м²

Стоимость строительства дома по данному проекту указана справочно и зависит от комплектации, технических условий и актуальных цен на строительные материалы! Получить консультацию по проекту можно по телефону (8452) 77-80-80.


Готовый проект одноэтажной бани общей площадью 30,36 м². Стены дома могут быть выполнены из газосиликатных блоков или силикатного кирпича. По плану в доме тамбур (2,55 м²), предбанник (4,16 м²), парная (5,00 м²), топочная (1,49 м²), санузел (1,61 м²), комната отдыха (15,55 м²) и терраса.


Общие технические характеристики дома
  • Внешняя площадь здания 60 м²
  • Общая площадь: 30,36 м²
  • Угол наклона кровли: 30°
  • Площадь крыши дома: 88,98 м²

Похожие проекты домов

Каркасная баня 35м² (SK79)
Одноэтажная каркасная баня 29м² (SK54)
Каркасная баня 31м² (SK53)
Одноэтажная каркасная баня 25м² (SK30)
Одноэтажная каркасная баня с одной спальней 35м² (SK25)
Одноэтажный дом с тремя спальнями 94.69м² + крыльцо 4.79м2 (S1)
Одноэтажная каркасная баня с одной спальней 52м² (SK18)
Сравнить
0