Одноэтажный каркасный дом с тремя спальнями 96м² (SK9)

Артикул: SK9
Артикул: SK9
Одноэтажный каркасный дом с тремя спальнями 96м² (SK9)
СТОИМОСТЬ УТОЧНЯЙТЕ ПО ТЕЛЕФОНУ 8(8452)77-80-80

Стоимость строительства дома по данному проекту указана справочно и зависит от комплектации, технических условий и актуальных цен на стройматериалы! Консультация по проекту по телефону (8452) 77-80-80.


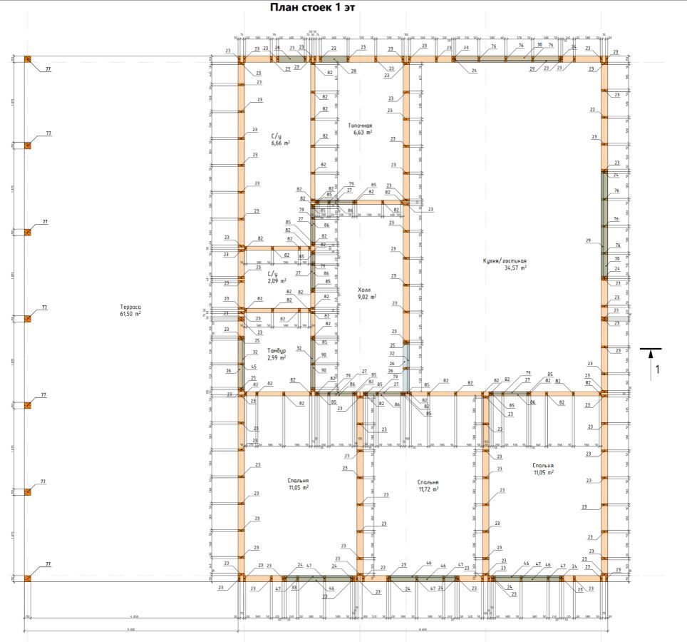
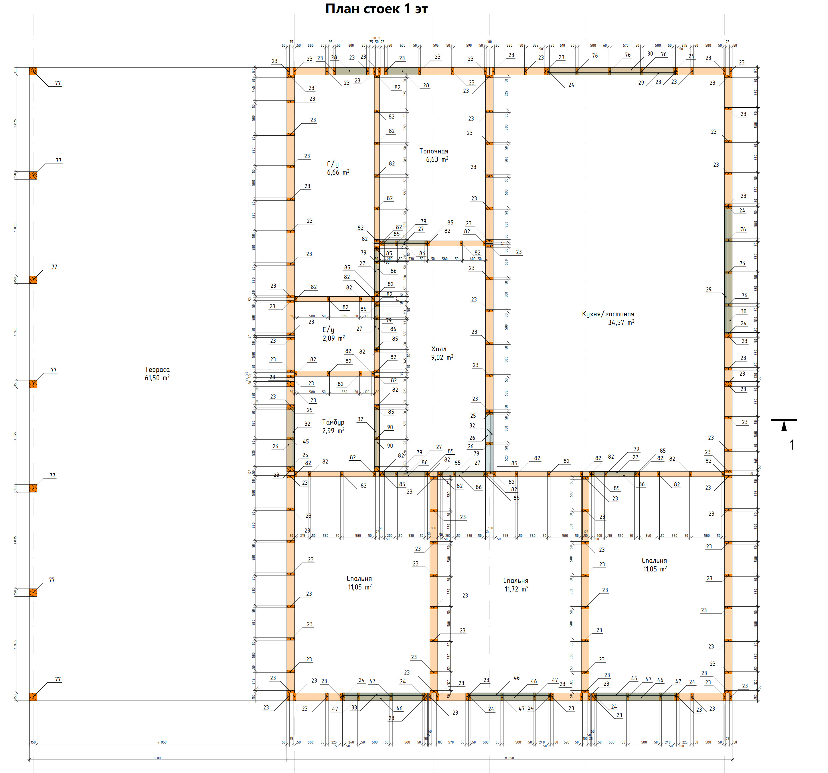
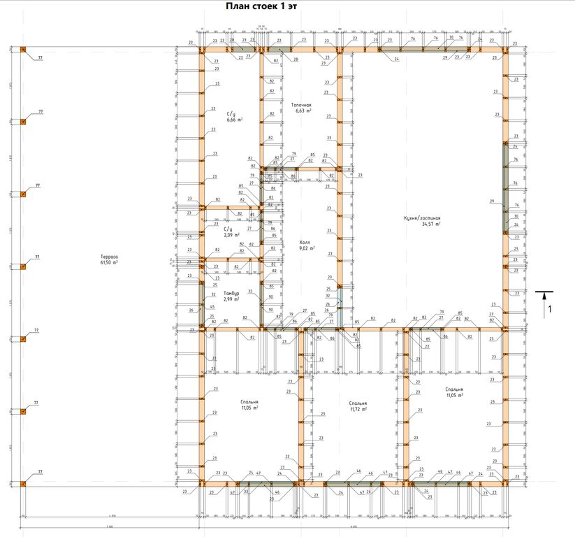
Готовый проект одноэтажного дома общей площадью 85,79 м² для строительства по каркасной технологииПо плану в доме тамбур (2,99 м²), холл (9,02 м²), два санузла (2,09 м², 6,66 м²), топочная (6,63 м²), кухня-гостиная (34,57 м²), три спальни (11,05 м², 11,72 м², 11,05 м²) и терраса (61,50 м²).


Общие технические характеристики дома
  • Внешняя площадь здания 95 м²
  • Общая площадь: 85,79 м²
  • Площадь террасы: 61,50 м²
  • Площадь застройки: 104 м²
  • Высота 1 этажа: 3 м
  • Угол наклона кровли: 30°
  • Площадь кровли: 221,48 м²

Стоимость строительства дома по данному проекту указана справочно и зависит от комплектации, технических условий и актуальных цен на стройматериалы! Консультация по проекту по телефону (8452) 77-80-80.


Готовый проект одноэтажного дома общей площадью 85,79 м² для строительства по каркасной технологииПо плану в доме тамбур (2,99 м²), холл (9,02 м²), два санузла (2,09 м², 6,66 м²), топочная (6,63 м²), кухня-гостиная (34,57 м²), три спальни (11,05 м², 11,72 м², 11,05 м²) и терраса (61,50 м²).


Общие технические характеристики дома
  • Внешняя площадь здания 95 м²
  • Общая площадь: 85,79 м²
  • Площадь террасы: 61,50 м²
  • Площадь застройки: 104 м²
  • Высота 1 этажа: 3 м
  • Угол наклона кровли: 30°
  • Площадь кровли: 221,48 м²

Похожие проекты домов

Одноэтажный каркасный дом с двумя спальнями 62м² (SK8)
Одноэтажный каркасный дом с тремя спальнями 53м² (SK17)
Одноэтажный каркасный дом с тремя спальнями 125м² (SK7)
Одноэтажный каркасный дом с тремя спальнями 98м² (SK39)
Одноэтажный каркасный дом с тремя спальнями 96м² (SK48)
Одноэтажный каркасный дом с тремя спальнями 140м² (SK4)
Одноэтажный каркасный дом с тремя спальнями 163м² (SK3)
Сравнить
0