Двухэтажный каркасный дом с четырьмя спальнями 130м² (SK33)

Артикул: SK33
Артикул: SK33
Двухэтажный каркасный дом с четырьмя спальнями 130м² (SK33)
СТОИМОСТЬ УТОЧНЯЙТЕ ПО ТЕЛЕФОНУ 8(8452)77-80-80

Стоимость строительства дома по данному проекту указана справочно и зависит от комплектации, технических условий и актуальных цен на стройматериалы! Консультация по проекту по телефону (8452) 77-80-80.


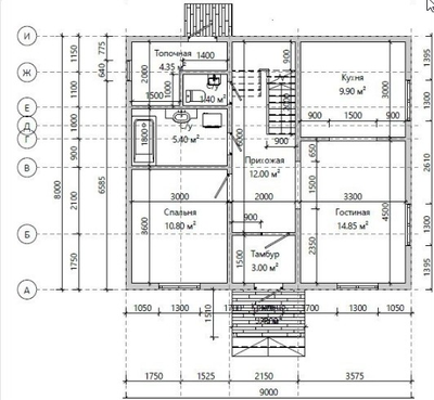
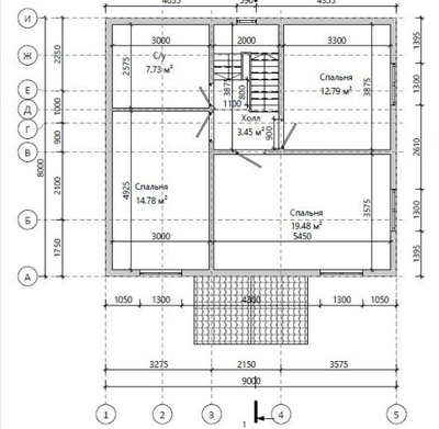
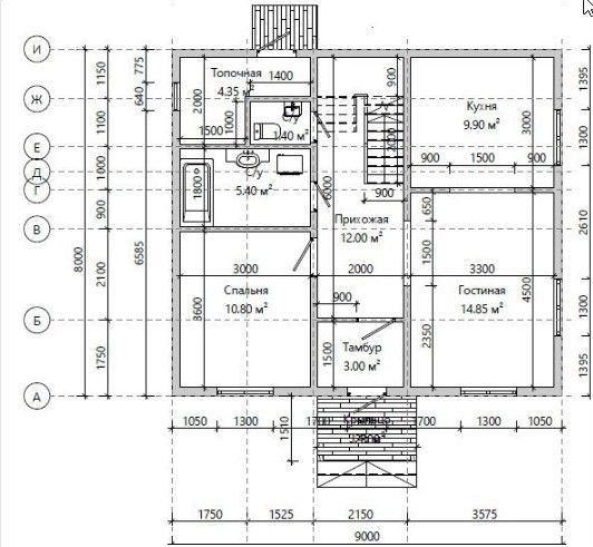
Готовый проект двухэтажного дома общей площадью 130 м² для строительства по каркасной технологииПо плану в доме тамбур (3,00 м²), прихожая (12,00 м²), холл (3,45 м²), топочная (4,35 м²), три санузла (1,40 м², 5,40 м², 7,73 м²), кухня (9,90 м²), гостиная (14,85 м²), четыре спальни (10,80 м², 12,79 м², 14,78 м², 19,48 м²).


Общие технические характеристики дома
  • Общая площадь: 130 м²
  • Площадь застройки: 147 м²
  • Высота 1 этажа/2 этажа: 2,8 м
  • Угол наклона кровли: 30°
  • Площадь крыши: 190 м²

Стоимость строительства дома по данному проекту указана справочно и зависит от комплектации, технических условий и актуальных цен на стройматериалы! Консультация по проекту по телефону (8452) 77-80-80.


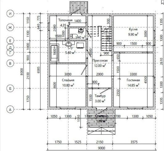
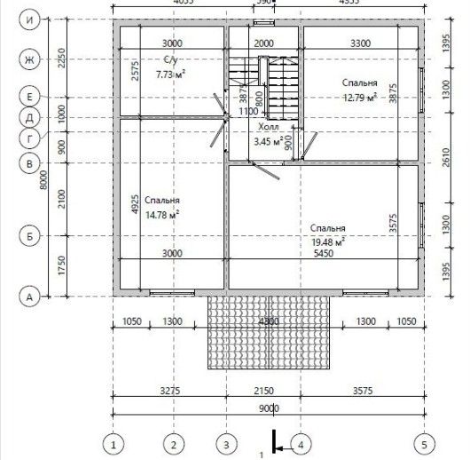
Готовый проект двухэтажного дома общей площадью 130 м² для строительства по каркасной технологииПо плану в доме тамбур (3,00 м²), прихожая (12,00 м²), холл (3,45 м²), топочная (4,35 м²), три санузла (1,40 м², 5,40 м², 7,73 м²), кухня (9,90 м²), гостиная (14,85 м²), четыре спальни (10,80 м², 12,79 м², 14,78 м², 19,48 м²).


Общие технические характеристики дома
  • Общая площадь: 130 м²
  • Площадь застройки: 147 м²
  • Высота 1 этажа/2 этажа: 2,8 м
  • Угол наклона кровли: 30°
  • Площадь крыши: 190 м²

Похожие проекты домов

Двухэтажный каркасный дом с четырьмя спальнями 270м² (SK5)
Двухэтажный каркасный дом с четырьмя спальнями 146м² (SK6)
Двухэтажный каркасный дом с четырьмя спальнями 101м² (SK20)
Двухэтажный каркасный дом с четырьмя спальнями 147м² (SK21)
Двухэтажный каркасный дом с четырьмя спальнями 142м² (SK24)
Двухэтажный каркасный дом с четырьмя спальнями 130м² (SK34)
Двухэтажный каркасный дом с четырьмя спальнями 93м² (SK36)
Сравнить
0