Одноэтажный дом с тремя спальнями 90м² (S95)

Артикул: S95
Артикул: S95
Одноэтажный дом с тремя спальнями 90м² (S95)
СТОИМОСТЬ УТОЧНЯЙТЕ ПО ТЕЛЕФОНУ 8(8452)77-80-80

Стоимость строительства дома по данному проекту указана справочно и зависит от комплектации, технических условий и актуальных цен на стройматериалы! Консультация по проекту по телефону (8452) 77-80-80.


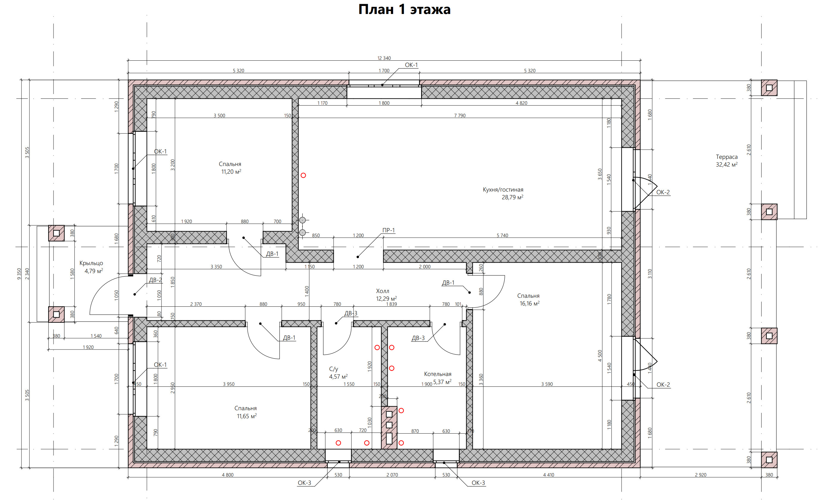
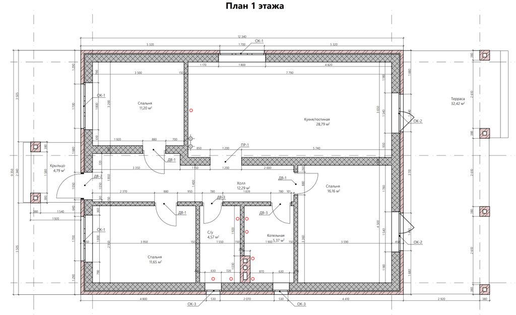
Готовый проект одноэтажного дома общей площадью 90,03 м². Стены дома могут быть выполнены из газосиликатных блоков или силикатного кирпича. По плану в доме холл (12,29 м²), котельная (5,37 м²), санузел (4,57 м²), кухня-гостиная (28,79 м²), три спальни (11,20 м², 11,65 м², 16,16 м²) и терраса (32,42 м²).


Общие технические характеристики дома
  • Внешняя площадь здания 146 м²
  • Жилая (общая) площадь: 90,03 м²
  • Площадь террасы и крыльца: 37,21 м²
  • Угол наклона кровли: 30°
  • Площадь крыши дома: 162,24 м²
  • Площадь крыши террасы: 37,07 м²

Стоимость строительства дома по данному проекту указана справочно и зависит от комплектации, технических условий и актуальных цен на стройматериалы! Консультация по проекту по телефону (8452) 77-80-80.


Готовый проект одноэтажного дома общей площадью 90,03 м². Стены дома могут быть выполнены из газосиликатных блоков или силикатного кирпича. По плану в доме холл (12,29 м²), котельная (5,37 м²), санузел (4,57 м²), кухня-гостиная (28,79 м²), три спальни (11,20 м², 11,65 м², 16,16 м²) и терраса (32,42 м²).


Общие технические характеристики дома
  • Внешняя площадь здания 146 м²
  • Жилая (общая) площадь: 90,03 м²
  • Площадь террасы и крыльца: 37,21 м²
  • Угол наклона кровли: 30°
  • Площадь крыши дома: 162,24 м²
  • Площадь крыши террасы: 37,07 м²