Одноэтажный дом с пятью спальнями 102м² (S34)

Артикул: S34
Артикул: S34
Одноэтажный дом с пятью спальнями 102м² (S34)
СТОИМОСТЬ УТОЧНЯЙТЕ ПО ТЕЛЕФОНУ 8(8452)77-80-80

Стоимость строительства дома по данному проекту указана справочно и зависит от комплектации, технических условий и актуальных цен на стройматериалы! Консультация по проекту по телефону (8452) 77-80-80.


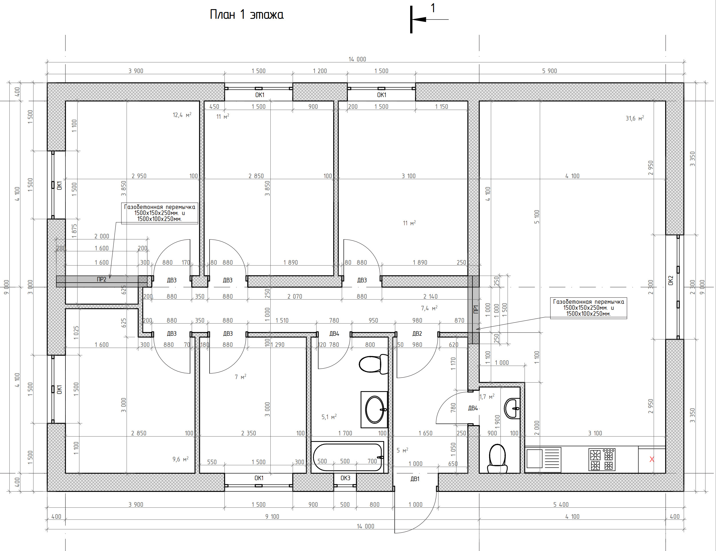
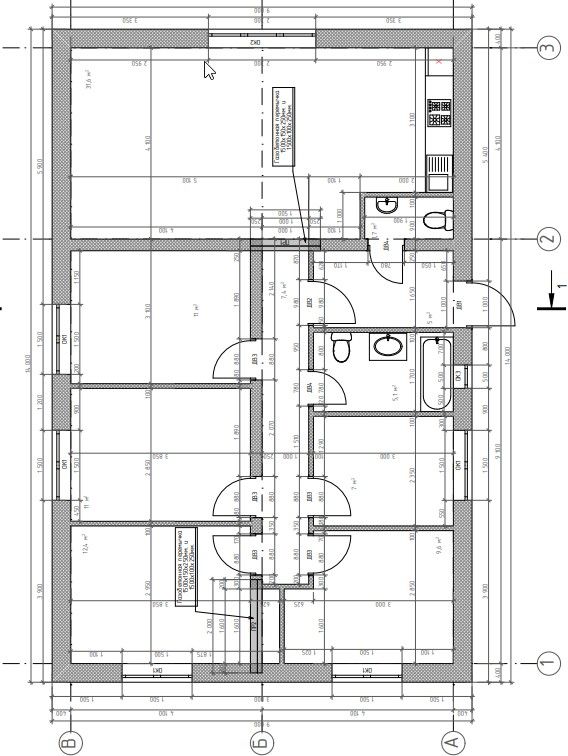
Готовый проект одноэтажного дома общей площадью 101,8 м². Стены дома могут быть выполнены из газосиликатных блоков или силикатного кирпича. По плану в доме пять спален, просторная объединенная кухня-гостиная.


Общие технические характеристики дома
  • Внешняя площадь здания 126 м²
  • Жилая (общая) площадь: 101,8 м²
  • Площадь застройки: 126 м²
  • Высота этажа: 3 м
  • Угол наклона кровли: 30°
  • Площадь кровли: 179 м²
  • Площадь кровли навеса: 2,7 м²

Стоимость строительства дома по данному проекту указана справочно и зависит от комплектации, технических условий и актуальных цен на стройматериалы! Консультация по проекту по телефону (8452) 77-80-80.


Готовый проект одноэтажного дома общей площадью 101,8 м². Стены дома могут быть выполнены из газосиликатных блоков или силикатного кирпича. По плану в доме пять спален, просторная объединенная кухня-гостиная.


Общие технические характеристики дома
  • Внешняя площадь здания 126 м²
  • Жилая (общая) площадь: 101,8 м²
  • Площадь застройки: 126 м²
  • Высота этажа: 3 м
  • Угол наклона кровли: 30°
  • Площадь кровли: 179 м²
  • Площадь кровли навеса: 2,7 м²

Похожие проекты домов

Одноэтажный дом с пятью спальнями 125м² (S11)
Одноэтажный дом с четырьмя спальнями 145м² (S12)
Одноэтажный дом с четырьмя спальнями 160м² (S17)
Одноэтажный дом с тремя спальнями 105м² (S82)
Одноэтажный дом с тремя спальнями 105м² (S86)
Одноэтажный дом с тремя спальнями 105м² (S16)
Одноэтажный дом с тремя спальнями 101м² (S15)
Одноэтажный дом с тремя спальнями 78м² (S14)
Сравнить
0