Одноэтажный дом с тремя спальнями 168.7 м² (S25)

Артикул: S25
Одноэтажный дом с тремя спальнями 168.7 м² (S25)

Общие технические характеристики объекта:

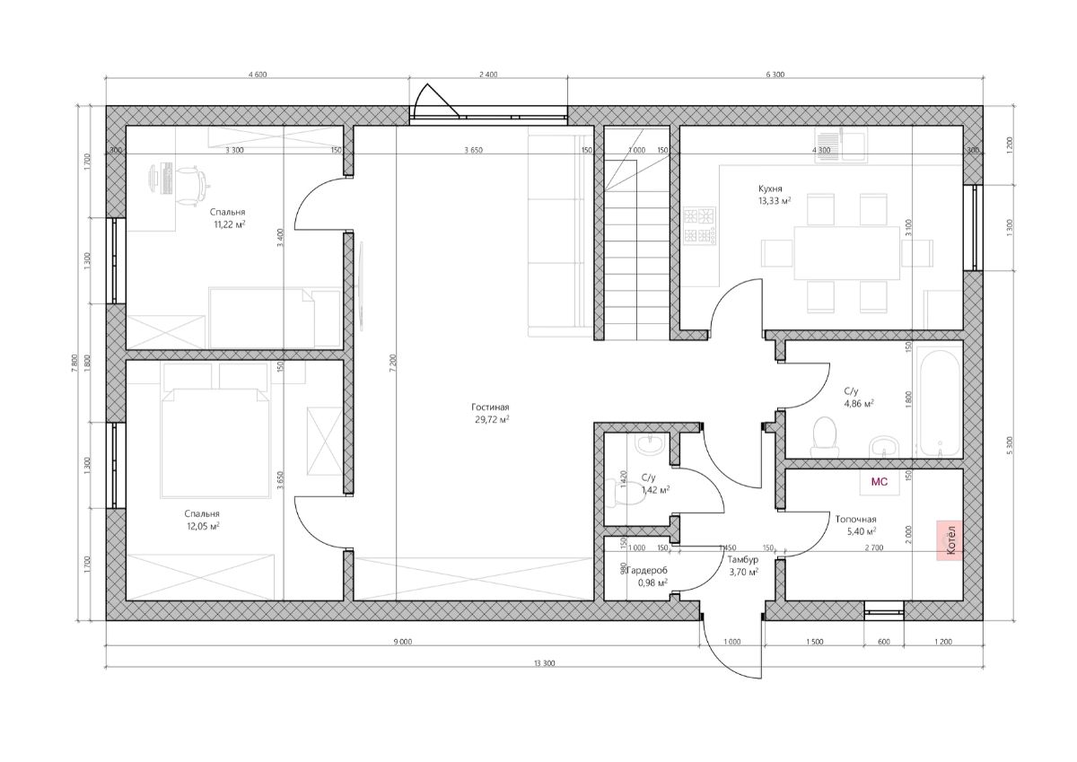
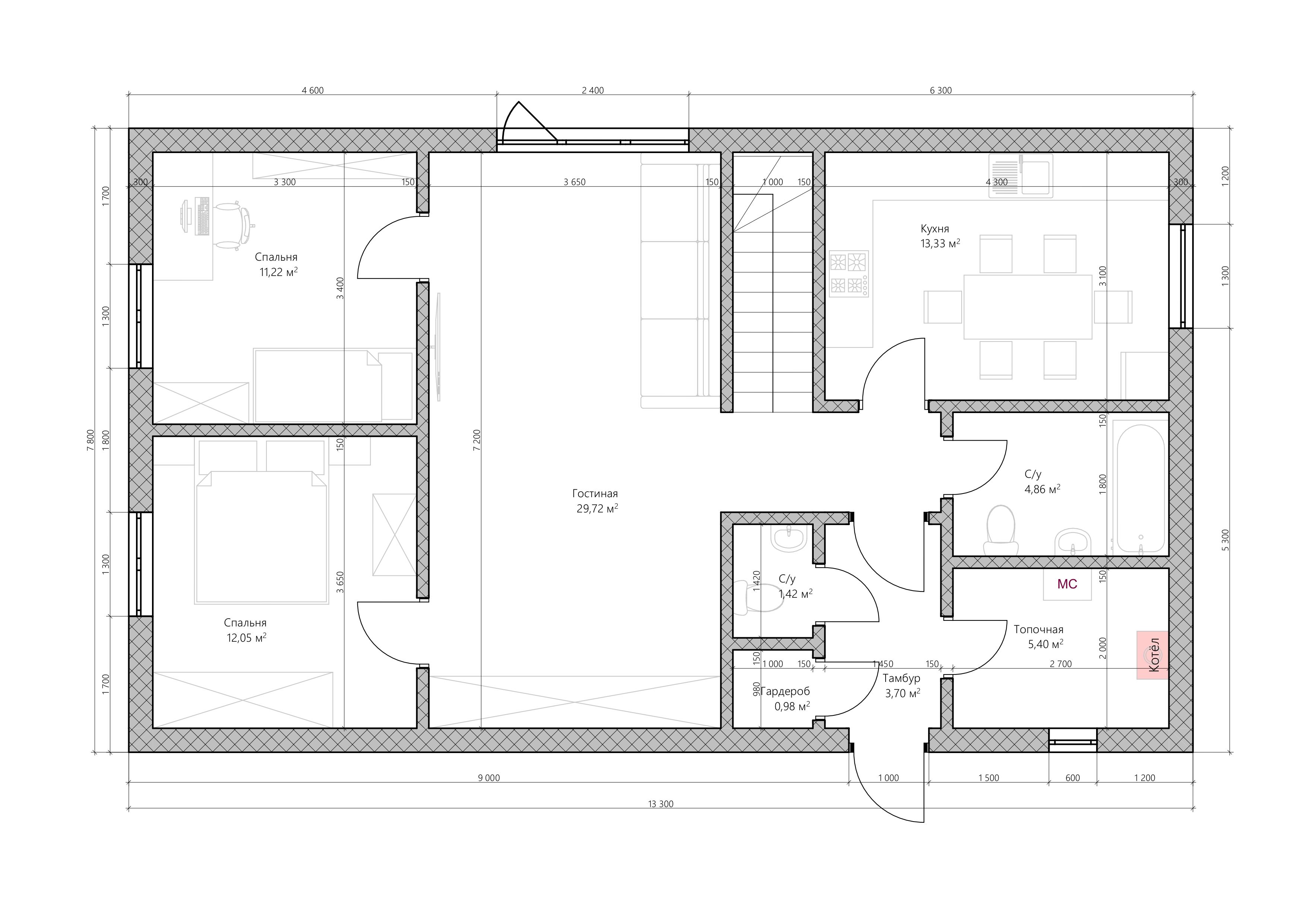
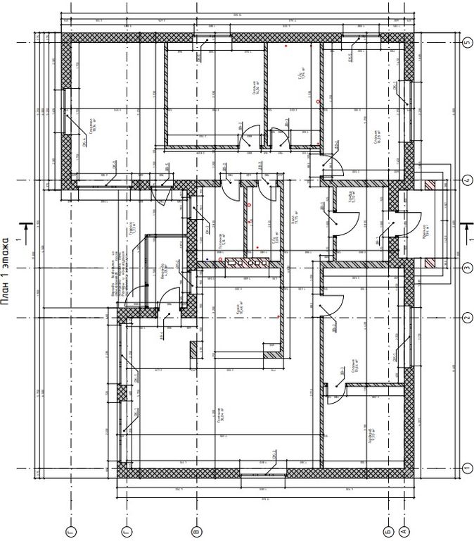
  • Площадь застройки - 103.74 м²
  • Жилая  площадь - 168.7 м²
  • Высота этажа - 3 м
  • Спальни 1 - 11.22 м²
  • Спальня 2 - 12.05м²
  • Сан уз 2 - 4.86 м²
  • Сан уз 2 - 1.42 м² 
  • Кухня - 13.33 м²
  • Гостинная - 29.72 м²
  • Котельная - 5.37 м²
  • Цоколь - 86.02 м²



СТОИМОСТЬ УТОЧНЯЙТЕ ПО ТЕЛЕФОНУ 8(8452)77-80-80

Общие технические характеристики объекта:

  • Площадь застройки - 103.74 м²
  • Жилая  площадь - 168.7 м²
  • Высота этажа - 3 м
  • Спальни 1 - 11.22 м²
  • Спальня 2 - 12.05м²
  • Сан уз 2 - 4.86 м²
  • Сан уз 2 - 1.42 м² 
  • Кухня - 13.33 м²
  • Гостинная - 29.72 м²
  • Котельная - 5.37 м²
  • Цоколь - 86.02 м²



  • Описание






    Проект S25 «Одноэтажный дом 168.7 м²» разработан профессиональными архитекторами в соответствии с действующими строительными нормами и правилами (СНиП), стандартами (ГОСТ), региональными нормативами. При проектировании дома учтены особенности локального рынка стройматериалов и наш позитивный опыт сотрудничества с поставщиками. Проект отлично подходит для строительства дома «под ключ» в любой точке Саратова, Энгельса и Саратовской области, а также для получения льготной ипотеки на строительство частного дома (в том числе с использованием маткапитала). 


    Варианты комплектации объекта -

    Стоимость выбранной комплектации можно уточнить у менеджера ПО ТЕЛЕФОНУ +7 (8452) 77-80-80

    Коробка дома

    Комплектация

    «Старт»

    «Стандарт»

    «Премиум»

    Фундамент

    Фундамент плита.
    Высота цоколя до 30 см.

    Свайно - ростверковый фундамент
    Высота цоколя до 50 см.

    Рассчитывается под индивидуальный запрос клиент и под участок

    Закладные - эл-во, вода, канализ.

    Стены внешние и внутренние несущие

    Керамический кирпич пустотный 250мм / Газоблок 250мм (утепление по запросу) Керамический кирпич пустотный 250мм / Газоблок 250мм + утепление ППС 100мм Керамический кирпич пустотный 380мм / Силикатный кирпич 380мм + утепление Каменная Вата(фасадная) 100мм

    Стены не несущие

    Керамический кирпич пустотный 120мм / Газоблок 150мм

    Керамический кирпич пустотный 120мм / Газоблок 150мм

    Керамический кирпич пустотный 250мм / Силикатный кирпич 250мм

    Межэтажное перекрытие

    Сборные пустотные плиты Сборные пустотные плиты Железобетонный монолит 150-200мм(в зависимости от габаритов здания)

    Потолок верхнего этажа

    Деревянные лаги из доски естественной влажности 200мм
    Утепление Минеральная Вата 200мм
    Деревянные лаги из сухой Доски 200мм
    Утепление Минеральная Вата 200мм
    Деревянные лаги из сухой строганой Доски 200мм
    Утепление Минеральная Вата 200мм
    Или монолитное железобетонное перекрытие 150-200мм(в зависимости от габаритов здания) + утеплитель ЭППС 150мм

    Стропильная система крыши


    Доска естественной влажности. Сечение доски рассчитывается по проекту Сухая Доска. Сечение доски рассчитывается по проекту Сухая строганая Доска. Сечение доски рассчитывается по проекту

    Кровля

    Металлочерепица/Гибкая черепица эконом класса Гибкая черепица стандарт класса/Цементно песчаная черепица Гибкая черепица премиум класса/Керамическая черепица

    Снегозадержание

    По запросу

    Водосточная система

    По запросу Водостоки ДЕКЕ Водостоки ДЕКЕ Премиум

    Окна

    По запросу Пластиковые Пластиковые/Алюминиевые

    Облицовка фасада

    По запросу Штукатурный фасад/Облицовочный кирпич(по запросу) Облицовочный кирпич/Клинкерный кирпич(по запросу)

    Лестница входная(крыльцо)

    По запросу Ступеньки, крыльцо Ступеньки, крыльцо, столбы, навес.

    Подшив софитов

    По запросу Подшив профлистом С8 Система Софитов

    Входные двери

    По запросу Двери Торекс Снегирь из стандартной линейки Двери под заказ

    Лестница внутренняя

    По запросу Монолитная железобетонная Монолитная железобетонная

    Вентканалы

    Стандартные решения естественной вентиляции Стандартные решения естественной вентиляции Приточно-вытяжная вентиляция

    Отмостка

    По запросу Железобетонная отмостка без дренажной системы Железобетонная отмостка + дренажная система

    Септик

    По запросу Стандартное решение выгребной ямы переливной с двумя колодцами Биосептик

    Предчистовая отделка

    Комплектация

    «Старт»

    «Стандарт»

    «Премиум»

    Отопление

    По запросу Теплые полы Комбинированная система: Теплые полы и Радиаторы

    Подача горячей и холодной воды

    По запросу От двухконтурного котла От бойлера косвенного нагрева

    Котельная наполнение

    По запросу Котел, обвязка системы отопления и водоснабжения.(Стандартные решения) Котел, обвязка системы отопления с использованием автоматика, удаленного управления, регулирование температуры каждого помещения автоматически

    Электропроводка

    По запросу Разводка кабеля ко всем точкам(розеткам, вылючателям, осветительным приборам). Кабель по ГОСТУ.  
    Без подрозетников
    Разводка кабеля ко всем точкам(розеткам, вылючателям, осветительным приборам). Кабель по ГОСТУ. 
    Установка подрозетников
    Систему умный дом по запросу

    Электрощит

    По запросу Сборка щитка(автоматы IEK или аналоги) Сборка щитка(автоматы Systeme Electric или аналоги)

    Стяжка

    По запросу Утеплитель отсечной ЭППС 30мм
    Стяжка 100-150мм
    Утеплитель отсечной ЭППС 50мм
    Стяжка 100-150мм

    Штукатурка

    По запросу

    Гипсовая штукатурка по маякам
    Без армирования

    Гипсовая штукатурка по маякам
    С армированием

    В зависимости от параметров участка и пожеланий Заказчика возможна адаптация проекта под технические условия, внесение линейных изменений, перепланировка, пристройка веранды, террасы, навеса, гаража и других объектов. 


    Получить консультацию по проекту, пригласить специалиста для составления сметы и заказать строительство банного комплекса «под ключ» можно по телефону (8452) 77-80-80 или онлайн. Мы обязательно дадим полезные советы и рекомендации, сориентируем по срокам строительства, предложим максимально честные цены на строительные и монтажные работы.

  • Характеристики

    Внутренняя площадь дома
    168.7 м2
    Количество спален в доме
    2 спал
    Количество этажей
    2 этаж
    Проект с цокольным этажом
    есть
    Срок строительства
    8 мес.
  • Комментарии 0






Проект S25 «Одноэтажный дом 168.7 м²» разработан профессиональными архитекторами в соответствии с действующими строительными нормами и правилами (СНиП), стандартами (ГОСТ), региональными нормативами. При проектировании дома учтены особенности локального рынка стройматериалов и наш позитивный опыт сотрудничества с поставщиками. Проект отлично подходит для строительства дома «под ключ» в любой точке Саратова, Энгельса и Саратовской области, а также для получения льготной ипотеки на строительство частного дома (в том числе с использованием маткапитала). 


Варианты комплектации объекта -

Стоимость выбранной комплектации можно уточнить у менеджера ПО ТЕЛЕФОНУ +7 (8452) 77-80-80

Коробка дома

Комплектация

«Старт»

«Стандарт»

«Премиум»

Фундамент

Фундамент плита.
Высота цоколя до 30 см.

Свайно - ростверковый фундамент
Высота цоколя до 50 см.

Рассчитывается под индивидуальный запрос клиент и под участок

Закладные - эл-во, вода, канализ.

Стены внешние и внутренние несущие

Керамический кирпич пустотный 250мм / Газоблок 250мм (утепление по запросу) Керамический кирпич пустотный 250мм / Газоблок 250мм + утепление ППС 100мм Керамический кирпич пустотный 380мм / Силикатный кирпич 380мм + утепление Каменная Вата(фасадная) 100мм

Стены не несущие

Керамический кирпич пустотный 120мм / Газоблок 150мм

Керамический кирпич пустотный 120мм / Газоблок 150мм

Керамический кирпич пустотный 250мм / Силикатный кирпич 250мм

Межэтажное перекрытие

Сборные пустотные плиты Сборные пустотные плиты Железобетонный монолит 150-200мм(в зависимости от габаритов здания)

Потолок верхнего этажа

Деревянные лаги из доски естественной влажности 200мм
Утепление Минеральная Вата 200мм
Деревянные лаги из сухой Доски 200мм
Утепление Минеральная Вата 200мм
Деревянные лаги из сухой строганой Доски 200мм
Утепление Минеральная Вата 200мм
Или монолитное железобетонное перекрытие 150-200мм(в зависимости от габаритов здания) + утеплитель ЭППС 150мм

Стропильная система крыши


Доска естественной влажности. Сечение доски рассчитывается по проекту Сухая Доска. Сечение доски рассчитывается по проекту Сухая строганая Доска. Сечение доски рассчитывается по проекту

Кровля

Металлочерепица/Гибкая черепица эконом класса Гибкая черепица стандарт класса/Цементно песчаная черепица Гибкая черепица премиум класса/Керамическая черепица

Снегозадержание

По запросу

Водосточная система

По запросу Водостоки ДЕКЕ Водостоки ДЕКЕ Премиум

Окна

По запросу Пластиковые Пластиковые/Алюминиевые

Облицовка фасада

По запросу Штукатурный фасад/Облицовочный кирпич(по запросу) Облицовочный кирпич/Клинкерный кирпич(по запросу)

Лестница входная(крыльцо)

По запросу Ступеньки, крыльцо Ступеньки, крыльцо, столбы, навес.

Подшив софитов

По запросу Подшив профлистом С8 Система Софитов

Входные двери

По запросу Двери Торекс Снегирь из стандартной линейки Двери под заказ

Лестница внутренняя

По запросу Монолитная железобетонная Монолитная железобетонная

Вентканалы

Стандартные решения естественной вентиляции Стандартные решения естественной вентиляции Приточно-вытяжная вентиляция

Отмостка

По запросу Железобетонная отмостка без дренажной системы Железобетонная отмостка + дренажная система

Септик

По запросу Стандартное решение выгребной ямы переливной с двумя колодцами Биосептик

Предчистовая отделка

Комплектация

«Старт»

«Стандарт»

«Премиум»

Отопление

По запросу Теплые полы Комбинированная система: Теплые полы и Радиаторы

Подача горячей и холодной воды

По запросу От двухконтурного котла От бойлера косвенного нагрева

Котельная наполнение

По запросу Котел, обвязка системы отопления и водоснабжения.(Стандартные решения) Котел, обвязка системы отопления с использованием автоматика, удаленного управления, регулирование температуры каждого помещения автоматически

Электропроводка

По запросу Разводка кабеля ко всем точкам(розеткам, вылючателям, осветительным приборам). Кабель по ГОСТУ.  
Без подрозетников
Разводка кабеля ко всем точкам(розеткам, вылючателям, осветительным приборам). Кабель по ГОСТУ. 
Установка подрозетников
Систему умный дом по запросу

Электрощит

По запросу Сборка щитка(автоматы IEK или аналоги) Сборка щитка(автоматы Systeme Electric или аналоги)

Стяжка

По запросу Утеплитель отсечной ЭППС 30мм
Стяжка 100-150мм
Утеплитель отсечной ЭППС 50мм
Стяжка 100-150мм

Штукатурка

По запросу

Гипсовая штукатурка по маякам
Без армирования

Гипсовая штукатурка по маякам
С армированием

В зависимости от параметров участка и пожеланий Заказчика возможна адаптация проекта под технические условия, внесение линейных изменений, перепланировка, пристройка веранды, террасы, навеса, гаража и других объектов. 


Получить консультацию по проекту, пригласить специалиста для составления сметы и заказать строительство банного комплекса «под ключ» можно по телефону (8452) 77-80-80 или онлайн. Мы обязательно дадим полезные советы и рекомендации, сориентируем по срокам строительства, предложим максимально честные цены на строительные и монтажные работы.

Внутренняя площадь дома
168.7 м2
Количество спален в доме
2 спал
Количество этажей
2 этаж
Проект с цокольным этажом
есть
Срок строительства
8 мес.

Удалить товар

Вы точно хотите удалить выбранный товар? Отменить данное действие будет невозможно.

Похожие проекты домов

Одноэтажный дом с тремя спальнями 78м² (S14)
Одноэтажный дом с тремя спальнями 91.4м² и террасой 21.59м2 (S15)
Одноэтажный дом с тремя спальнями 105м² (S16)
Одноэтажный дом с тремя спальнями 105м² (S28)
Одноэтажный дом с тремя спальнями 103м² (S29)
Одноэтажный дом с тремя спальнями 112.63м² (S30)
Одноэтажный дом с тремя спальнями 110.8м² + терраса 26.37м² (S42)
Двухэтажный дом с тремя спальнями, кабинетом 137.27м² (S43)
Сравнить
0

Удалить товар

Вы точно хотите удалить выбранный товар? Отменить данное действие будет невозможно.