Одноэтажный дом с тремя спальнями 112м² (S10)

Артикул: S10
Артикул: S10
Одноэтажный дом с тремя спальнями 112м² (S10)
СТОИМОСТЬ УТОЧНЯЙТЕ ПО ТЕЛЕФОНУ 8(8452)77-80-80

Стоимость строительства дома по данному проекту указана справочно и зависит от комплектации, технических условий и актуальных цен на строительные материалы! Получить консультацию по проекту можно по телефону (8452) 77-80-80.


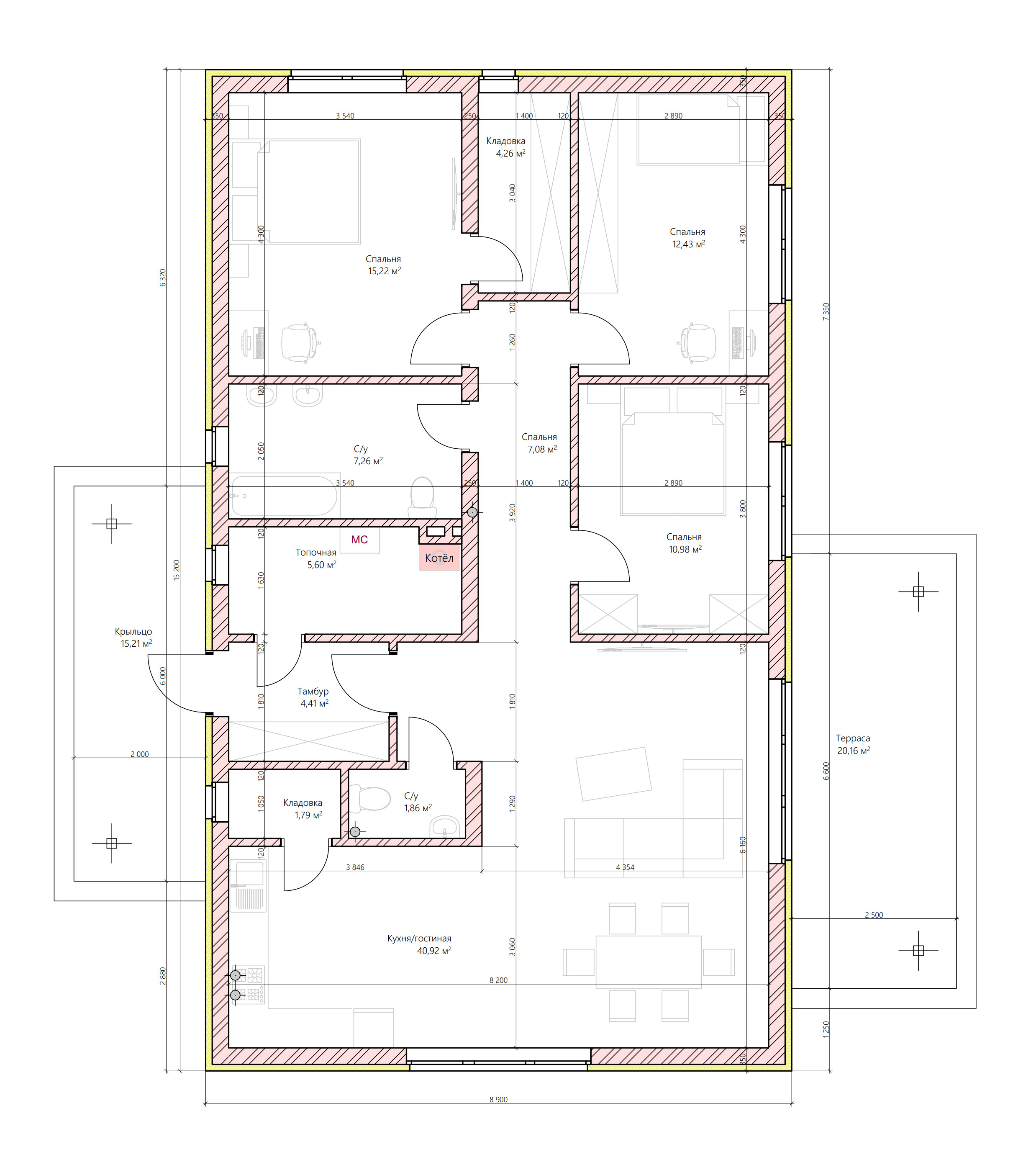
Готовый проект одноэтажного дома жилая площадью 111.81 м². Стены дома могут быть выполнены из газосиликатных блоков или силикатного кирпича. По плану в доме три спальни (10.98 м², 12.43 м² и 15.22 м²), кухня-гостиная (40.92 м²), два санузла (1.86 м² и 7.26 м²), две кладовки (1.79 м² и 4.26 м²), тамбур (4.41 м²), холл (7.08 м²) топочная (5.60 м²), крыльцо (15.21 м²) и терраса (20.16 м²).


Общие технические характеристики дома


  • Внешняя площадь здания 170.65 м²
  • Общая площадь: 170.65 м²
  • Площадь крыльца: 15.21 м²
  • Площадь террасы 20.16 м2


  • Жилая (общая) площадь: 111,81 м²
  • Высота этажа 2,8 м
  • Угол наклона кровли: 30°

Стоимость строительства дома по данному проекту указана справочно и зависит от комплектации, технических условий и актуальных цен на строительные материалы! Получить консультацию по проекту можно по телефону (8452) 77-80-80.


Готовый проект одноэтажного дома жилая площадью 111.81 м². Стены дома могут быть выполнены из газосиликатных блоков или силикатного кирпича. По плану в доме три спальни (10.98 м², 12.43 м² и 15.22 м²), кухня-гостиная (40.92 м²), два санузла (1.86 м² и 7.26 м²), две кладовки (1.79 м² и 4.26 м²), тамбур (4.41 м²), холл (7.08 м²) топочная (5.60 м²), крыльцо (15.21 м²) и терраса (20.16 м²).


Общие технические характеристики дома


  • Внешняя площадь здания 170.65 м²
  • Общая площадь: 170.65 м²
  • Площадь крыльца: 15.21 м²
  • Площадь террасы 20.16 м2


  • Жилая (общая) площадь: 111,81 м²
  • Высота этажа 2,8 м
  • Угол наклона кровли: 30°
Сравнить
0